Продажа 5-комнатная квартира, Уфа, Карла Маркса 49/1

Цена:
20 000 000 Р
Тип объявления: Продажа
Цена за м²: 109 890 Р

Информация о недвижимости

Категория жилья: Вторичное
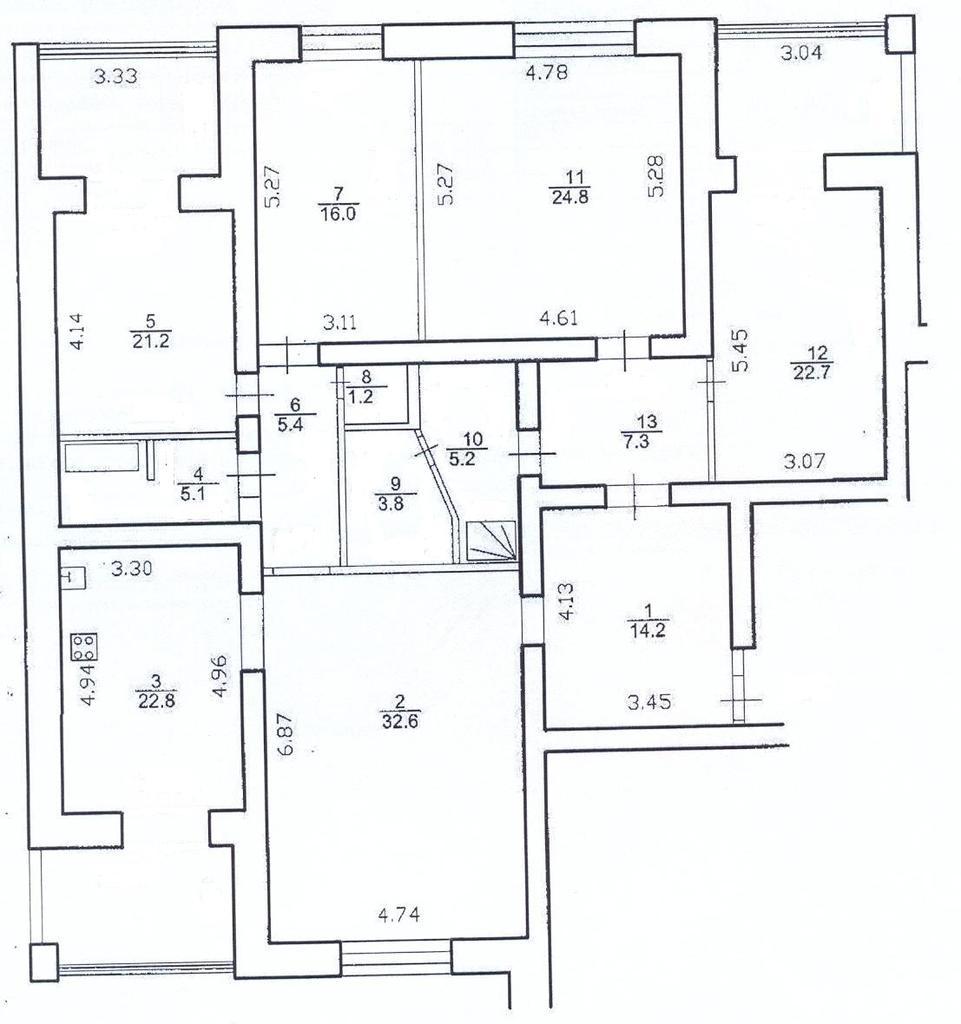
Площадь полная: 182.0 м²
Площадь жилая: 117.0 м²
Площадь кухни: 23.0 м²
Количество комнат: 5
Этаж (этажей): 11 (11)
Тип дома: Кирпичный
Дополнительная информация: Продается 5-ти комн. квартира, ул. К.Маркса 49/1, в р-не ТДК Александровский Пассаж, 11/11 к., 182/117/23, дом 2004 г. Высота потолков 2,9 м, эксклюзивный водопад с подсветкой, на потолке ручная роспись, 3 шкафа-купе, электрокамин «Dimplex» (с ПДУ), кондиционер. Встр. акустическая система, диван из натуральной кожи угловой «mebel&zeit» с ПДУ, арка с двумя колоннами, Встроенная кухня и техника. Два санузла: полы теплые, унитаз подвесной, инсталляция, сауна (узаконена), душевая кабина. Отдельный раб. кабинет, две стилизованные детские и постирочная. Тревожная кнопка, шлагбаум. Из окон видны : офис АНК «Башнефть», БЦ «Капитал», ТДК Александровский Пассаж, сквер и ул. М. Карима, а также совсем близко ТРК «Галерея АРТ», банки, бутики. (В цену входит не вся перечисленная мебель, т.е. вопрос обсуждается при осмотре). Рядом улицы: Гоголя, Чернышевского, Мустая Карима, Кирова,Красина, Аксакова,Ленина.

Местоположение

Город: Уфа
Адрес: Карла Маркса 49/1
Показать на карте

Объявление в архиве