Продажа 3-комнатная квартира, Уфа, Карла Маркса 15/2

Цена:
9 900 000 Р
Тип объявления: Продажа
Цена за м²: 76 154 Р

Информация о недвижимости

Категория жилья: Вторичное
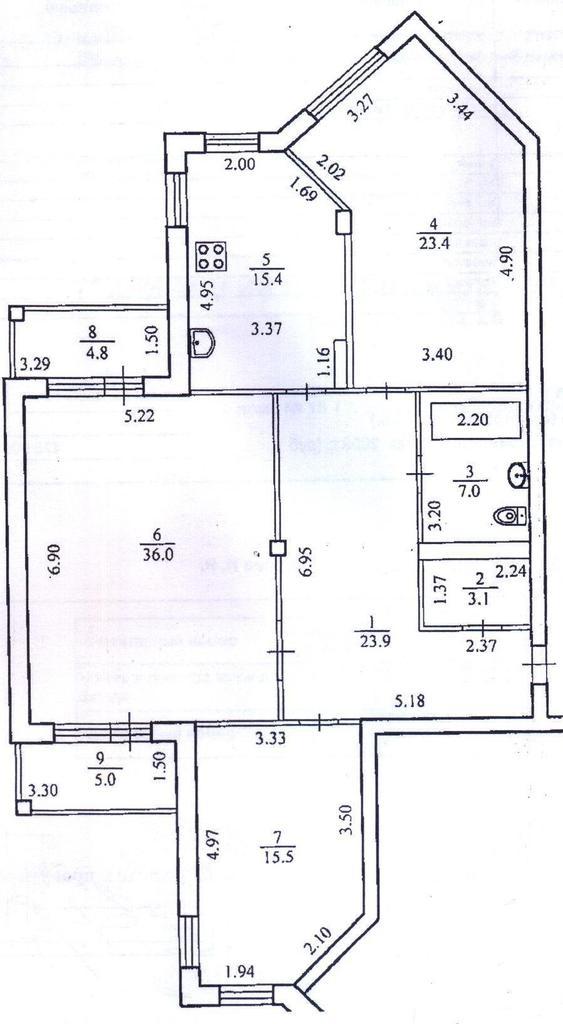
Площадь полная: 130.0 м²
Площадь жилая: 75.0 м²
Площадь кухни: 15.0 м²
Количество комнат: 3
Этаж (этажей): 2 (6)
Тип дома: Кирпичный
Дополнительная информация: Продается 3х комн. квартира в центре, ул. Маркса 15/2, в районе Гостиного Двора, 2/6 кирп., 130/75/15, дом 2001 года постройки, в доме современный лифт, видеонаблюдение двора, удобное расположение (три выезда со двора: на ул. Пушкина, на ул. Свердлова, на ул. Гоголя). Все комнаты раздельные. Высота потолков 2,7 м. Состояние хорошее. Окна деревянные с двойным стеклопакетом, ламинат, две застекленные лоджии (утеплены, обшиты, есть освещение, на окнах жалюзи), большая кладовка, спутниковое телевидение, сигнализация, 2 кондиционера Панасоник. Кухня итальянская, варочная панель и духовой шкаф Zanussi. Большой холл и зал. Дом во дворе, место тихое. Много места для парковки Вашего авто. Рядом улицы: Гоголя, Коммунистичесая, Пушкина, Свердлова, Аксакова, Театральная, Заки Валиди, Чернышевского. Фото и 3D планировка на персональном сайте www.карламаркса15к2.рф т. 298-10-55, 8-927-921-77-89, 8-917-757-88-63 Иван Кадесников.

Местоположение

Город: Уфа
Адрес: Карла Маркса 15/2
Показать на карте

Объявление в архиве