Продажа 4-комнатная квартира, Уфа, Зеленогорская 5

Цена:
5 890 000 Р
Тип объявления: Продажа
Цена за м²: 57 745 Р

Информация о недвижимости

Категория жилья: Вторичное
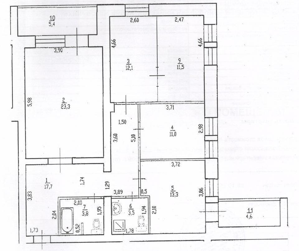
Площадь полная: 102.0 м²
Площадь жилая: 58.0 м²
Площадь кухни: 13.0 м²
Количество комнат: 4
Этаж (этажей): 1 (6)
Тип дома: Кирпичный
Дополнительная информация: Продается 4х комн. квартира, ул. Зеленогорская 5, (между Сипайлово и Проспектом), 102/58/13, 1/6 кирп., Комнаты 2+2, 2 санузла в кафеле (ванна, душ. кабина), две лоджии застеклены и обшиты, на большой лоджии стильные жалюзи, окна высоко пластиковые, на окнах кованные решетки, зеркальный шкафы-купе, встроенный кухонный гарнитур, возможен обмен на коттедж плюс ваша доплата. Спокойное, тихое место в большом городе, удобные подъездные пути к мкр. Шикарный вид на город. Рядом оз. Кашкадан, к/т Простор, ипподром Акбузат, АкваПАРК. Рядом улицы: Фруктовая, Кольская, Гайдара, Верхоянская, Новогорная

Местоположение

Город: Уфа
Адрес: Зеленогорская 5
Показать на карте

Объявление в архиве