Продажа 2-комнатная квартира, Уфа, ул. Карла Маркса, д.62

Цена:
7 650 000 Р
Тип объявления: Продажа

Информация о недвижимости

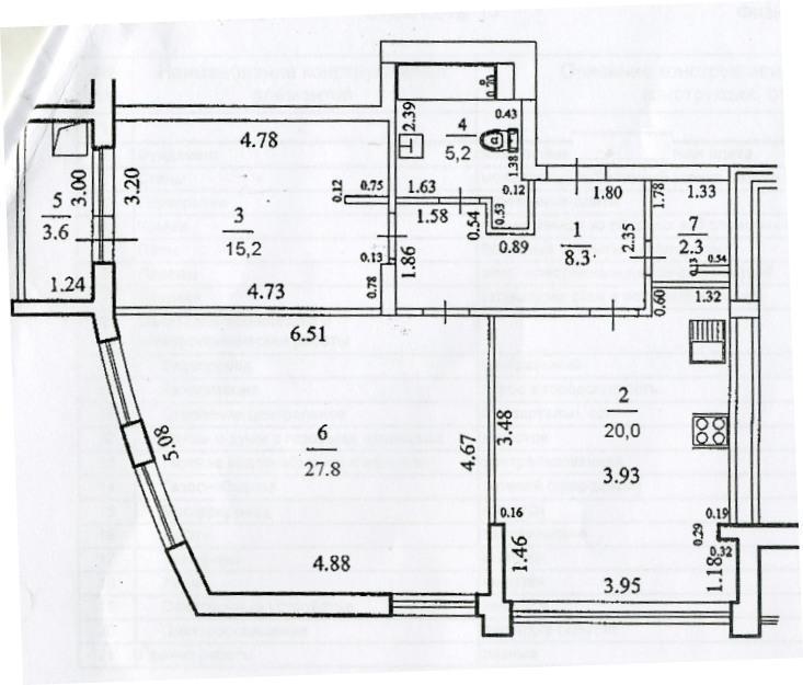
Площадь жилая: 43.0 м²
Площадь кухни: 20.0 м²
Количество комнат: 2
Этаж : 4
Тип дома: Кирпичный
Дополнительная информация:  Продается отличная просторная  двухкомнатная квартира   по ул. Карла Маркса 62 (микрорайон Айгуль).Квартира расположена на четвертом этаже десятиэтажного кирпичного дома 2012 года постройки.Общая площадь квартиры  80,5 кв.м.: кухня 20 кв.м., гостиная 27,8 кв.м., спальня 15,2 кв.м.,  гардеробная 2,3 кв.м. Квартира с отличным современным  ремонтом:  в гостиной, кухне-столовой и спальне –  полы ламинат, современные обои, потолки гипсокартон, в санузле – плитка, в коридоре на полу – керамогранит.  Остается  встроенная кухня с бытовой техникой. Лоджия застеклена и обшита. Окна квартиры выходят во двор(восток) и в сторону Б.Ибрагимова(юг).   При необходимости можно квартиру перепланировать в трехкомнатную, планировка и площадь позволяет. В подъезде консьерж. Парковка подземная и надземная. В шаговой доступности школа №8 и 95, детский сад №128, детская музыкальная школа, парк Якутова. Взрослый собственник. Ипотека. Чистая продажа. В квартире никто не проживал.

Местоположение

Город: Уфа
Адрес: ул. Карла Маркса, д.62
Показать на карте

Объявление в архиве