Продажа 2-комнатная квартира, Уфа, ул. Ферина, д.17/2

Цена:
3 230 000 Р
Тип объявления: Продажа

Информация о недвижимости

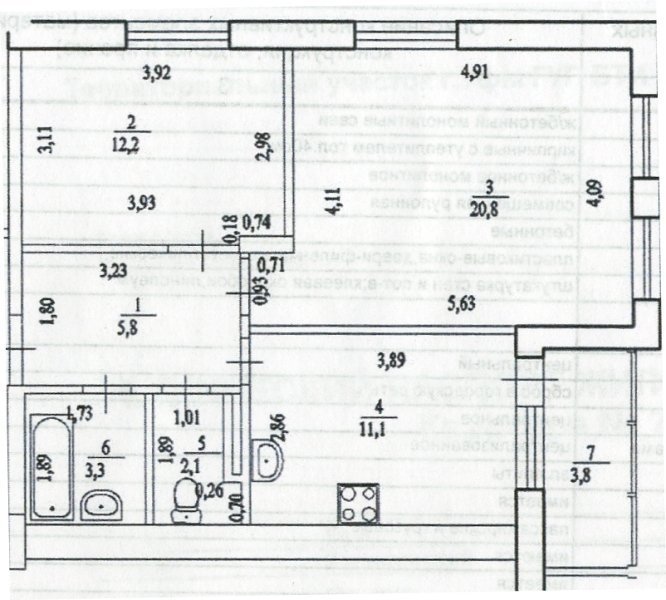
Площадь жилая: 33.0 м²
Площадь кухни: 11.1 м²
Количество комнат: 2
Этаж : 15
Тип дома: Кирпичный
Дополнительная информация: Продается отличная двухкомнатная квартира общей площадью 57,2 кв. м в Калининском районе города Уфа по улице Ферина, дом 17/2, мкр. ИНОРС. Квартира расположена на 15 этаже 16 этажного кирпичного дома 2011 года постройки.  Окна выходят на две стороны. Квартира просторная, светлая, теплая, удобная планировка:  все комнаты изолированные, общей площадью 57,2 кв.м, площадь жилого помещения 55,3 кв.м, жилая площадь 33,0 кв.м, кухня 11,1, с/узел раздельный: туалет 2,1 кв.м, ванная комната 3,3 кв.м, лоджия из кухни застеклена. Чистовая отделка, окна - пластиковые стеклопакеты, домофон, пожарная система, новая металлическая входная дверь. Трубы полипропилен. Установлены счетчики на воду. Во дворе и вокруг дома ведется видеонаблюдение, комплекс расположен в лесопарковой зоне, во дворе большие детские игровые площадки с ограждениями, парковка, своя управляющая компания, которая следит за порядком в доме и в комплексе. Ипотека возможна. Документы готовы. Один взрослый собственник. Торг при осмотре. Чистая продажа. В шаговой доступности: школа-лицей № 60, садик № 261, детская городская поликлиника №4, поликлиника №1 больницы № 13, стоматологическая поликлиника, Сфера Эстейт, ООО Центр амбулаторного диализа, аптеки, магазины, рынок «Юрматы», супермаркеты: «Байрам», «Полушка», «Магнит», «Матрица», салоны сотовой связи, банки, банкоматы, ОАО УМПО, Богородско-Уфимский храм. Отличная транспортная доступность в любую часть города (20 маршрутов на ближайшей остановке). Ближайшие остановки общественного транспорта:  "Ферина" и «Богородско-Уфимский храм» в пяти минутах ходьбы.    Рядом расположены улицы: Валерия Лесунова, бульвар Баландина, Тухвата Янаби, Сельская Богородская, Глинки, Георгия Мушникова,  Транспортная, Фронтовых бригад,  мкр. «Полесье», мкр. «Лайм», мкр. «Новый инорс».

Местоположение

Город: Уфа
Адрес: ул. Ферина, д.17/2

Объявление в архиве