Продажа 2-комнатная квартира, Уфа, ул. Худайбердина, д.11

Цена:
8 900 000 Р
Тип объявления: Продажа

Информация о недвижимости

Площадь жилая: 75.0 м²
Площадь кухни: 30.0 м²
Количество комнат: 2
Этаж : 9
Тип дома: Кирпичный
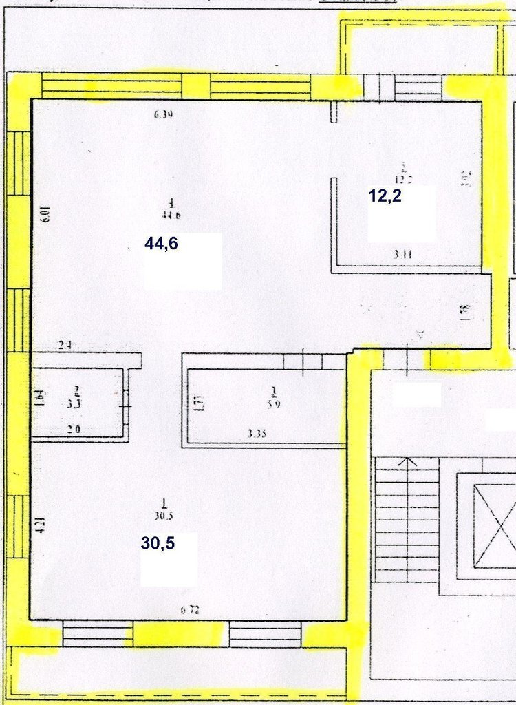
Дополнительная информация: Продается пентхаус – 2-х комнатная квартира в центре Уфы по ул. Худайбердина, 11На 9 этаже 10-этажного кирпичного дома. Площадь квартиры 100/75,1/30 кв.м. В доме идет отделка мест общего пользования.Жилой комплекс «Династия» - это уникальный дизайн, высокое качество строительства, современные отделочные материалы, минимальное количество соседей, наличие подземной и надземной парковок.Благоустройство: на первом этаже расположена комната консьержа и охрана. Каждый подъезд оснащается высокоскоростным импортным лифтом, системами видеонаблюдения. Особое внимание проектировщики уделили снижению уровня шума в жилых помещениях. Внешний вид: фасад нового дома  из экологически чистого керамогранита. Стены из красного кирпича толщиной 64 см. – 2,5 кирпича.На этаже всего 2 квартиры.В квартире выполнена предчистовая отделка: выровнены стены, оштукатурены и отшпаклеваны, залита стяжка пола со звукоизоляцией, заменены трубы отопления и импортные радиаторы (производства Словения), новая электропроводка, смонтированы алюминиевые витражные стеклопакеты светло-бежевого цвета с двойным стеклопакетом (отличная тепло- и шумоизоляция).Квартира свободной планировки: есть возможность разместить кухню в помещении площадью 12,2 или 30,5 кв.м., 2 санузла. Красивый панорамный вид на город. Окна выходят на 3 стороны: восток, юг и запад. Светлая квартира. Высота помещений 3,50 м.Вы также можете приобрести аналогичную соседнюю квартиру на этаже площадью 100 кв.м.Имеется в наличии 2 подземных паркинга за отдельную плату.Дом находится в историческом и деловом центре города. Развитая инфраструктура – в шаговой доступности сквер на Дорофеева, сквер Маяковского, все университеты, гимназии № 39, 3, 91. Рядом с домом лицей № 21. Взрослый собственник. Чистая продажа. Свидетельство на квартиру получено. Рядом ул. Цюрупы, Кирова, Ленина, Чернышевского, Крупской, Коммунистическая, Мустая Карима, Революционная, Пархоменко, Гоголя, Пушкина, Заки Валиди, Гафури, Карла Маркса, Достоевского, Дорофеева, Энгельса.

Местоположение

Город: Уфа
Адрес: ул. Худайбердина, д.11
Показать на карте

Объявление в архиве