| Цена: |
4 200 000 Р
|
| Тип объявления: | Продажа |
Информация о недвижимости |
|
| Площадь жилая: | 29.3 м² |
| Площадь кухни: | 12.4 м² |
| Количество комнат: | 2 |
| Этаж : | 12 |
| Тип дома: | Кирпичный |
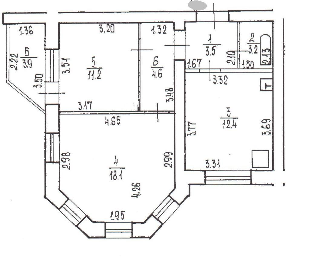
| Дополнительная информация: | Продается двухкомнатная квартира по ул. Рабкоров 4/1 в Кировском районе. Расположена на 12 этаже 16-этажного кирпичного дома. Общая площадь 54,2 кв.м. , жилая 29, 3 кв.м, кухня 12.4 кв.м. Квартира в обычном состоянии.Более трех лет. Чистая продажа. Улицы рядом: Высотная, Софьи Перовской, Мубарякова, Степана Кувыкина, Рабкоров, Дуванская, Кавказская, Менделеева. |
Местоположение |
|
| Город: | Уфа |
| Адрес: | ул. Рабкоров, д.4/1 |
Объявление в архиве |