Продажа 3-комнатная квартира, Уфа, ул. Мажита Гафури, д.литер 1А

Цена:
6 243 640 Р
Тип объявления: Продажа

Информация о недвижимости

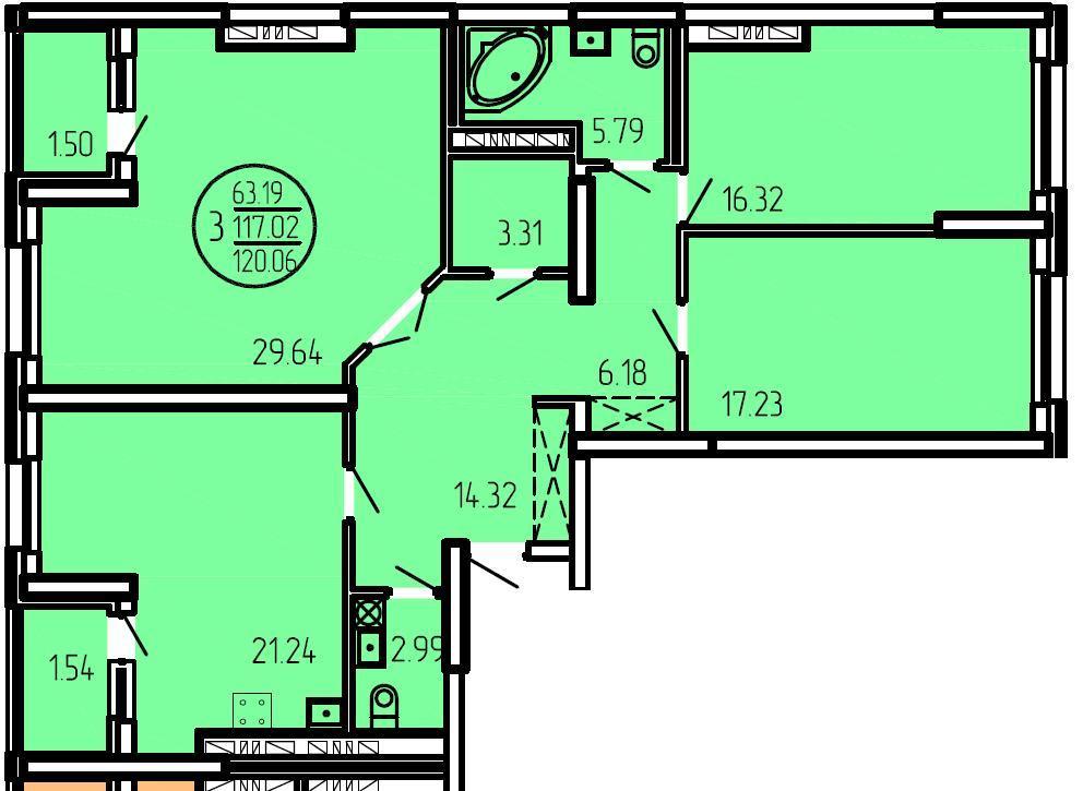
Площадь жилая: 63.19 м²
Площадь кухни: 21.24 м²
Количество комнат: 3
Этаж : 15
Тип дома: Монолит/кирпич
Дополнительная информация: Продается 3-комнатная квартира общей площадью 120 кв.м. в новом строящемся доме в центре Уфы  в ЖК «Аврора-сити», по ул. Гафури, литер 1А (квартал, ограниченный ул. Чернышевского-ул. Гафури-ул. Красина-ул. Султанова).   Квартира расположена на 15 этаже 25-этажной секции дома, материал строительства – кирпич+монолит.  Комфортная, продуманная планировка: просторный холл, изолированные комнаты, огромная гостиная, 2 застекленные лоджии, гардеробной,  2 санузла. Прекрасным дополнением квартир являются панорамные виды, открывающиеся из окон квартиры: с одной стороны на центр города, с другой - на реку Белая.  Квартиры сдаются с получистовой отделкой, включающей в себя: Отделка полов стен и потолков: штукатурка на стенах, стяжка под линолеум на полу, потолки – побелка. Сантехника в санузлах: унитаз, раковина, металлическая ванна, Сантехника на кухне - мойка. Индивидуальные счетчики учета воды. Электроразводка с оконечными устройствами, выключатели, розетки и звонки. Установка сетей слаботочных систем, пожарных систем ППА и ДУ. Механические фильтры отчистки воды. Пластиковые оконные конструкции. Теплые лоджии – алюминиевые оконные и витражные конструкции. Оформление ведется через ЖСК. Ипотеки нет. Оформление, бронирование для покупателя бесплатно. Первая очередь строительства – секции 1А,1Б,1В,1Г, расположенные прямо по улице Гафури (с 79 по 97 дома старой застройки) планируется к сдаче в 4 квартале 2017 года. Начало строительства – после сноса ветхого жилья весной 2015 года.   ЖК «Аврора-сити» - это комплекс из 14-ти сблокированных секционных жилых домов от 10 до 25 этажей, которые образуют букву «П», расположенные в историческом центре Уфы. Развитая социально-бытовая инфраструктура комплекса предполагает наличие охраняемой придомовой территории, удобного подземного паркинга, открытой гостевой парковки, детской площадки и облагороженных зон для прогулок и отдыха.   Инфраструктура застраиваемого района хороша развита. Рядом и в пределах 1 квартала находятся: Красинский рынок, Супермаркет Байрам БГПУ, Участковый пункт полиции Ленинского района, детские сады № 307, 225, 19, общеобразовательная школа № 10, Башкирский лицей № 2, Педагогический колледж, Уфимский медицинский колледж, СДЮШСР, Уфимский перинатальный центр, Центр раннего детского развития "Солнечный круг".

Местоположение

Город: Уфа
Адрес: ул. Мажита Гафури, д.литер 1А

Объявление в архиве