Продажа 1-комнатная квартира, Уфа, ул. Российская, д.171/2 стр., секция 3

Цена:
2 395 000 Р
Тип объявления: Продажа

Информация о недвижимости

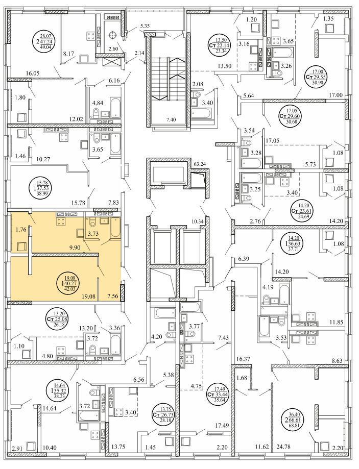
Площадь жилая: 19.0 м²
Площадь кухни: 9.9 м²
Количество комнат: 1
Этаж : 9
Тип дома: Кирпичный
Дополнительная информация: Акция!! Продается однокомнатная квартира, площадью 42.03 кв.м, в новом строящемся жилом комплексе Эрмитаж , расположенном в географическом центре города - микрорайоне Глумилино, ул.Российская стр.171/2, секция 3Договор долевого участия с регистрацией в Росреестре (регпалате) согласно 214-ФЗ. Название «Эрмитаж» говорит само за себя - новый жилой комплекс вобрал в себя все лучшее, что есть на сегодняшний день в сферах архитектуры, строительства, технологий, функциональности и дизайна, предлагая коллекцию квартир, достойных восхищения. Панорамные окна облегчают пространство, выглядят красиво и эффектно, пропускают много света, открывают роскошный вид на лесопарк и центр города. В сочетании с высокими потолками эти окна позволяют создать уникальный по красоте и функциональности интерьер. Единственные в Уфе проекты планировок некоторых квартир  «En suite» логично разделяют квартиру на гостевую и приватную зоны, возвращая традицию звать в гости. Круглосуточная услуга многофункционального консьерж-сервиса, к которой очень быстро привыкаешь, как и ко всему хорошему, позволит решать тысячу мелочей не выходя из дома. Двухуровневый механизированный паркинг станет не только предметом острого интереса мальчишек всех возрастов, но и почти полностью освободит большой зеленый двор от машин - на радость мамам и бабушкам. Для сохранения всеобщего спокойствия дом будет находиться под бдительным взором службы охраны частного агентства.     Квартира продается по акции. Наличие квартир необходимо уточнять! 

Местоположение

Город: Уфа
Адрес: ул. Российская, д.171/2 стр., секция 3

Объявление в архиве