Продажа 2-комнатная квартира, Уфа, ул. Первомайская, д.71/3 стр. секция В

Цена:
3 359 000 Р
Тип объявления: Продажа

Информация о недвижимости

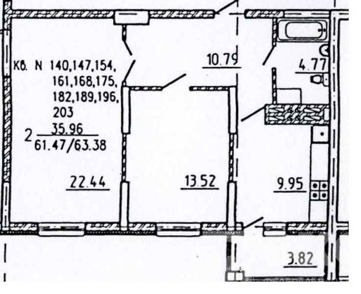
Площадь жилая: 35.96 м²
Площадь кухни: 9.95 м²
Количество комнат: 2
Этаж : 16
Тип дома: Кирпичный
Дополнительная информация: Продается 2к.квартира в новом строящем доме, по улице Первомайская, площадью 63.38 кв.м.Материал строительства монолит+кирпич.Несущие стены - монолитно-каркасный железобетон, наружные стены – самонесущие с поэтажным опиранием на плиты перекрытия, кирпичные с утеплителем с наружной стороны, перегородки – кирпичные, лестницы – из сборных железобетонных элементов, окна и витражи – из ПВХ.Получистовая отделка: улучшенная штукатурка стен, стяжка пола, металлическая входная дверь, остекление окон, лоджий и балконных дверей (2-х камерные стеклопакеты), электроразводка по квартире, подвод сантехнических труб, раковина, унитаз, электроплита,Развитая инфраструктура: рядом 2 садика, 2 гимназии, ДК Химик, ДК УМПО, школа, остановки общественного транспорта Свобода и Кремлёвская, супермаркеты, отделения банков. Полная сдача комплекса в эксплуатацию 3кв. 2016г. Оформление c регистрацией в Росреестре , согласно ФЗ РФ - 214, напрямую от застройщика. Юридическое сопровождение бесплатно. Застройщик надежный.Цена значительно ниже, чем у застройщика! С проектной документацией можно ознакомиться в офисе нашей компании по адресу ул. Кирова 52.Подбираем квартиры в новостройке в любом районе города Уфы и РБ - от ведущих застройщиков Уфы, от Подрядных организаций (подрядчиков) и инвесторов по ценам Ниже, чем у Застройщика.Мы анализируем риски, репутацию и документацию, работаем только с проверенными застройщиками.Обратившись к нам Вы получите- подбор новостройки по вашим требованиям,- бронирование понравившегося варианта,- юридическое сопровождение, организацию заключения сделки и регистрации договора.В случае продажи и встречной покупки жилья, мы поможем быстро найти покупателя на Вашу квартиру.

Местоположение

Город: Уфа
Адрес: ул. Первомайская, д.71/3 стр. секция В

Объявление в архиве