Продажа 3-комнатная квартира, Уфа, ул. Набережная, д.15/1

Цена:
3 700 000 Р
Тип объявления: Продажа

Информация о недвижимости

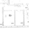
Площадь жилая: 46.0 м²
Площадь кухни: 9.0 м²
Количество комнат: 3
Этаж : 1
Тип дома: Кирпичный
Дополнительная информация: Продается отличная трехкомнатная квартира в новом сданном доме в микрорайоне Инорс по ул. Набережной Моторостроителей, 15/1. Общая площадь квартиры 70.3 кв м, жилая 46.1, кухня 8.7 кв м. Просторные комнаты, в прихожей есть место для небольшой гардеробной, раздельный санузел, три жилые комнаты и кухня. Дом сдан, в данный момент идет активное заселение. Отделка получистовая. Чистая продажа, ключи в день сделки. Остановка "Мушникова"-350 метров от дома, в соседнем дворе-гимназия №140, в 10ти минутах ходьбы два детских сада. Предприятия обслуживания в шаговой доступности.

Местоположение

Город: Уфа
Адрес: ул. Набережная, д.15/1

Объявление в архиве