Продажа 3-комнатная квартира, Уфа, ул. Октябрьской Революции, д.62

Цена:
7 470 000 Р
Тип объявления: Продажа

Информация о недвижимости

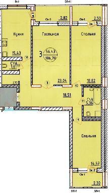
Площадь жилая: 56.43 м²
Площадь кухни: 15.43 м²
Количество комнат: 3
Этаж : 2
Тип дома: Монолит/кирпич
Дополнительная информация: Продается трехкомнатная квартира в строящемся  жилом доме по ул. Октябрьской Революции, 62.   Современная, удобная планировка. Общая площадь 106,7 кв.м, жилая – 56,43 кв.м, спальни -18,82 кв.м и 14,57 кв.м, гостиная – 23,04, кухня – 15,43 кв.м. Лоджии в каждой комнате. В прихожей предусмотрена площадь 1,77 кв.м для гардеробной. Окна выходят во двор в сторону ул. Октябрьской Революции, на северо-восток и на ул. Пушкина, на юго-запад. Дом расположен в историческом центре города, в районе с развитой инфраструктурой и транспортной доступностью. Территориально будет относиться к 3 гимназии. Рядом сад им. Аксакова. Ближайшая остановка: ул. Октябрьской Революции. Оформление: переуступка по Договору долевого участия с регистрацией в Росреестре. Цена ниже, чем у застройщика. Срочная продажа.

Местоположение

Город: Уфа
Адрес: ул. Октябрьской Революции, д.62
Показать на карте

Объявление в архиве