Продажа 2-комнатная квартира, Уфа, ул. Октябрьской Революции, д.62

Цена:
4 400 000 Р
Тип объявления: Продажа

Информация о недвижимости

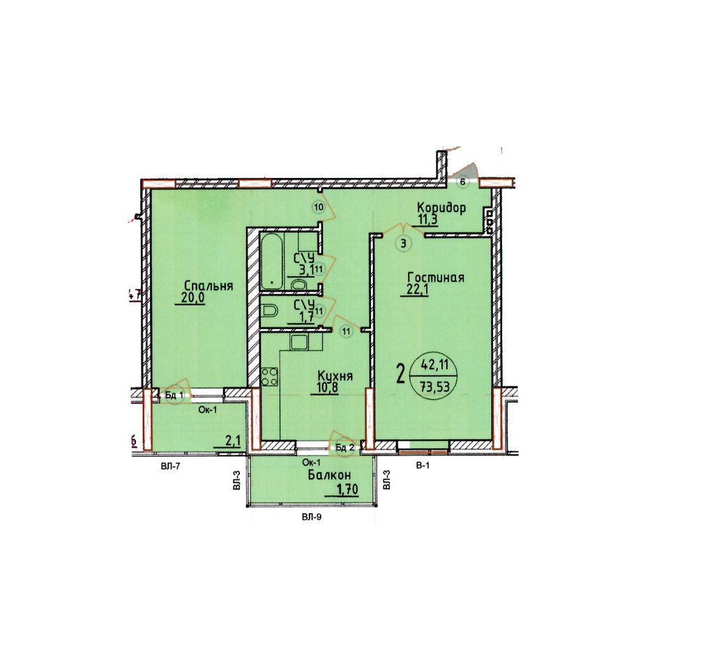
Площадь жилая: 42.11 м²
Площадь кухни: 10.8 м²
Количество комнат: 2
Этаж : 10
Тип дома: Монолит/кирпич
Дополнительная информация: Продается двухкомнатная квартира в строящемся  жилом доме по ул. Октябрьской Революции, 62.   Продуманная, комфортная планировка. Общая площадь 73,53 кв.м, спальня - 20, гостиная – 22,1, кухня – 10,8 кв.м. Выход на балкон из кухни, на лоджию – из спальни. Окна выходят в сторону ул. Пушкина, на юго-запад. Расположение в историческом центре города, развитая инфраструктура района и транспортная доступность делают этот дом привлекательным для проживания. Территориально будет относиться к 3 гимназии. Рядом сад им. Аксакова. Ближайшая остановка: ул. Октябрьской Революции. Оформление по Договору долевого участия с регистрацией в Росреестре. Продажа от застройщика.   При единовременной покупке квартиры и машино-места предоставляется скидка!

Местоположение

Город: Уфа
Адрес: ул. Октябрьской Революции, д.62
Показать на карте

Объявление в архиве