Продажа 3-комнатная квартира, Уфа, ул. Октябрьской Революции, д.62

Цена:
5 700 000 Р
Тип объявления: Продажа

Информация о недвижимости

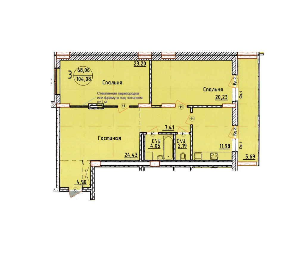
Площадь жилая: 68.06 м²
Площадь кухни: 11.98 м²
Количество комнат: 3
Этаж : 9
Тип дома: Монолит/кирпич
Дополнительная информация: Продаются трехкомнатные квартиры в строящемся  жилом доме по ул. Октябрьской Революции, 62 в секции Б.   Оригинальные планировки.   Общая площадь 104,08 кв.м., жилая – 68,06 кв.м, спальни - 20,23 кв.м и 23,2 кв.м, гостиная – 24,43, кухня – 11,98 кв.м. Одна, но большая лоджия. Окна выходят во двор в сторону ул. Октябрьской Революции, на северо-восток и на ул. Воровского, на юго-восток. Дом расположен в историческом центре города, в районе с развитой инфраструктурой и транспортной доступностью. Территориально будет относиться к 3 гимназии. Рядом сад им. Аксакова. Ближайшая остановка: ул. Октябрьской Революции. Оформление по Договору долевого участия с регистрацией в Росреестре. Продажа от застройщика.   При единовременной покупке квартиры и машино-места предоставляется скидка!

Местоположение

Город: Уфа
Адрес: ул. Октябрьской Революции, д.62
Показать на карте

Объявление в архиве