Продажа 3-комнатная квартира, Уфа, ул. Октябрьской Революции, д.62

Цена:
6 700 000 Р
Тип объявления: Продажа

Информация о недвижимости

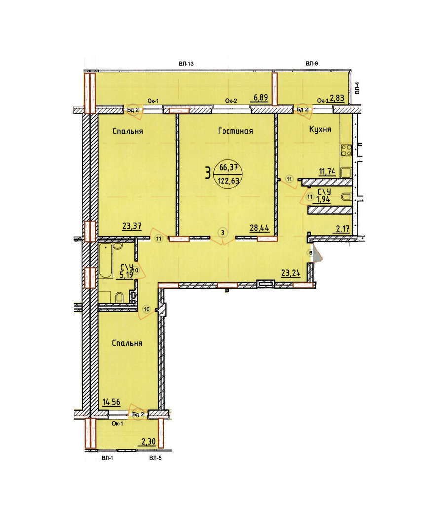
Площадь жилая: 66.37 м²
Площадь кухни: 11.74 м²
Количество комнат: 3
Этаж : 9
Тип дома: Монолит/кирпич
Дополнительная информация: Продается трехкомнатная квартира площадью 122,63 кв.м. в строящемся  жилом доме по ул. Октябрьской Революции, 62 в секции Б.   Оригинальные планировки.   Общая площадь 122,63 кв.м, жилая – 66,37 кв.м, спальни -14,56 кв.м и 23,37 кв.м, гостиная – 28,44 кв.м, кухня – 11,74 кв.м. Три лоджии. Окна выходят во двор в сторону ул. Октябрьской Революции, на северо-восток и на ул. Пушкина, на юго-запад.   Дом расположен в историческом центре города, в районе с развитой инфраструктурой и транспортной доступностью. Территориально будет относиться к 3 гимназии. Рядом сад им. Аксакова. Ближайшая остановка: ул. Октябрьской Революции. Оформление по Договору долевого участия с регистрацией в Росреестре. Продажа от застройщика.   При единовременной покупке квартиры и машино-места предоставляется скидка!

Местоположение

Город: Уфа
Адрес: ул. Октябрьской Революции, д.62
Показать на карте

Объявление в архиве