Продажа 2-комнатная квартира, Уфа, ул. Черниковская, д.16

Цена:
3 320 000 Р
Тип объявления: Продажа

Информация о недвижимости

Площадь жилая: 38.0 м²
Площадь кухни: 11.0 м²
Количество комнат: 2
Этаж : 2
Тип дома: Монолит/кирпич
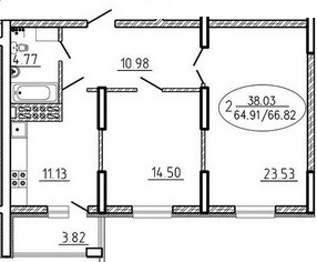
Дополнительная информация: Продается двухкомнатная квартира в выстроенном и сданном доме по ул.Черниковская, д. 16 (строит адрес: ул. Первомайская, д.71 литер 2). Квартира расположена на 2 из 12 этаже, материал строительства - монолит+кирпич. Общая площадь 66,82 кв. м., жилая 39, кухня 11 кв м. При входе в квартиру попадаем в просторную прихожую площадью 10 кв м, справа совмещенный санузел площадью 4,77 кв м, далее кухня с выходом на лоджию. Проходим дальше по коридору - справа и прямо расположены изолированные жилые комнаты площадью 14, 5 и 23,5 кв. м. соответственно. Окна в квартире выходят во двор, в сторону ул.Свободы. Получистовая отделка, дом сдан, активно идет заселение. Оформление по договору купли-продажи. Два детских сада находятся в соседнем дворе, в шаговой доступности гимназия №111, остановка "ул. Свободы". Очень развитая инфраструктура микрорайона.

Местоположение

Город: Уфа
Адрес: ул. Черниковская, д.16

Объявление в архиве