Продажа 3-комнатная квартира, Уфа, ул. Сосновая, д.4 стр.

Цена:
4 647 000 Р
Тип объявления: Продажа

Информация о недвижимости

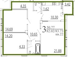
Площадь жилая: 50.77 м²
Площадь кухни: 10.3 м²
Количество комнат: 3
Этаж : 1
Тип дома: Кирпичный
Дополнительная информация: Продается 3к.квартира в новом Жилом Комплексе " Сосны".Площадь 83.73/50.77/10.30Месторасположение жилого комплекса «СОСНЫ» удобно и престижно - это тихое место, вдали от оживленных транспортных магистралей, шума и загазованности, рядом с лесом. Поблизости находятся река, три озера, большой лесной массив. Центр города расположен всего в пяти минутах езды от комплекса как общественном, так и на личном транспорте. Для владельцев автомобилей на территории предусмотрены паркинги, что обеспечит отсутствие машин во дворах и позволит сохранить тишину и чистый воздух.П/чистовая отделка.Дом расположен в живописном месте. На охраняемой территории. Рассматривается ипотека, рассрочка.Дом сдан.

Местоположение

Город: Уфа
Адрес: ул. Сосновая, д.4 стр.

Объявление в архиве