Продажа 2-комнатная квартира, Уфа, ул. Первомайская, д.71 литер 3

Цена:
3 007 000 Р
Тип объявления: Продажа

Информация о недвижимости

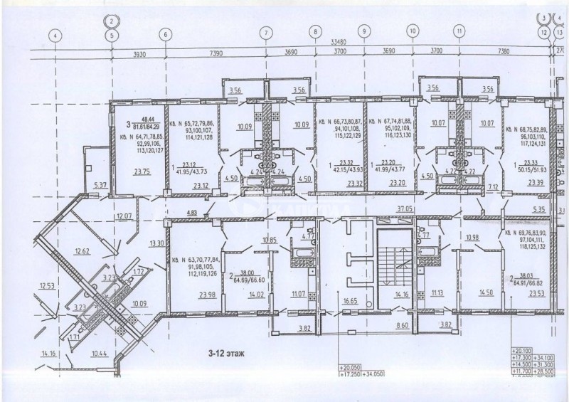
Площадь жилая: 38.0 м²
Площадь кухни: 11.0 м²
Количество комнат: 2
Этаж : 2
Тип дома: Монолит/кирпич
Дополнительная информация: Продаётся 2-к квартира в ЖК Первомайский площадью 66,82с получистовой отделкой:Конструктивная схема здания Несущие стены - монолитно-каркасный железобетон, наружные стены – самонесущие с поэтажным опиранием на плиты перекрытия, кирпичные с утеплителем с наружной стороны, перегородки – кирпичные, лестницы – из сборных железобетонных элементов, окна и витражи – из ПВХ.Наличие систем:— пассажирские и грузопассажирские лифты грузоподъемностью 400 и 630 кг.;— централизованное электроснабжение;— отопление, вентиляция, дымоудаление;— горячее и холодное водоснабжение;— домофонная связь, телефонизация, телевидение, мусоропроводЭлектрооборудование и сантехническое оборудование :— разводка сетей электро-, тепло-, водоснабжения с установкой приборов учета, сетей водоотведения, установка приборов отопления;— установка сантехнического оборудования: умывальник, мойка, унитаз со смесителем;— установка электроплиты.Виды работ, выполняемых в квартире:— ограждение балконов и лоджий блоками из ПВХ с одинарным остеклением;— установка оконных и балконных блоков из ПВХ с двухкамерными стеклопакетами;— установка подоконников;— улучшенная штукатурка стен;— затирка швов потолка;— цементная стяжка, звукоизоляция пола и гидроизоляция пола в санузлах.привлекательное местоположение, удобные планировки, развитая ифраструктурасдача 4 кв 2016 года

Местоположение

Город: Уфа
Адрес: ул. Первомайская, д.71 литер 3

Объявление в архиве