Продажа 2-комнатная квартира, Салават, ул. Хмельницкого, д.62

Цена:
3 077 000 Р
Тип объявления: Продажа

Информация о недвижимости

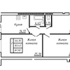
Площадь жилая: 46.0 м²
Площадь кухни: 14.0 м²
Количество комнат: 2
Этаж : 1
Тип дома: Кирпичный
Дополнительная информация: Продается   2-комнатная квартира в строящемся трехэтажном трехсекционном доме в городе Салавате по на пересечении улиц Б. Хмельницкого и Пугачева (строительный адрес: г. Салават, квартал № 61 Северного жилого района дом № 2).Квартиры с очень удобными планировками «повышенной комфортности». Рядом с домом будет обустроенная большая детская площадка, парковка для автомобилей, красивая зеленная территория.Кровля – двухскатная (профнастил). Стены – кладка в 3 кирпича (полнотелого красного, М - 125), дополнительно покрываются утеплителем. Фасад – декоративная штукатурка. Стены обладают высокими теплоизоляционными, а также звукоизоляционными свойствами, имеют эстетичный внешний вид.Отделка квартир:Пол - подготовка полов без покрытия (цементная стяжка, в ванной и туалете стяжка дополнена гидроизоляцией). Стены – штукатурка стен «по маячкам»; квартира без сантехники и межкомнатных дверей. Окна со стеклопакетами (двойной стеклопакет, ПВХ), лоджия застеклена (одинарный стеклопакет, ПВХ), дверь на лоджию (ПВХ). Электромонтажная разводка, стояки канализации (полиэтиленовые), стояки ХВС и ГВС с вентилями (полипропилен), приборы учета ХВС, ГВС, электроэнергии и газа, входная дверь (запираемая, металлическая), домофон, электрощит на этаже. Радиаторы отопления биметаллические.Срок сдачи дома – октябрь 2015 года.Квартиры расположены в тихом уютном районе северной части города, где приближенность к городскому парку отдыха и берегу реки Белой обеспечивает комфортное проживание благодаря чистому воздуху. Рядом расположены продуктовые магазины, супермаркет «Ярмарка», детские сады, поликлиника «СМЗ».Продажа возможна как за наличный расчет, рассрочку, так и в ипотеку (от 11.75%). Дом аккредитован в следующих банках: Сбербанк, Россельхозбанк.Заявку на ипотеку в СБЕРБАНК, ВТБ 24, Россельхозбанк, Вы можете подать прямо в нашем офисе «ЭКСПЕРТ» на Ленина, 33 (между городской стоматологией и магазином «Полушка»).Возможно использовать материнский капитал в качестве первоначального взноса.ВНИМАНИЕ АКЦИЯ!!! -- КАЖДОМУ ПОКУПАТЕЛЮ (ДОЛЬЩИКУ) ПОДАРОК - «СЕРТИФИКАТ НА 10 тыс. РУБЛЕЙ» от МЕБЕЛЬНОГО САЛОНА «KOMANDOR».

Местоположение

Город: Салават
Адрес: ул. Хмельницкого, д.62
Показать на карте

Объявление в архиве