Продажа 3-комнатная квартира, Салават, ул. Бекетова, д.5

Цена:
2 612 000 Р
Тип объявления: Продажа

Информация о недвижимости

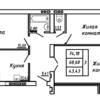
Площадь жилая: 43.0 м²
Площадь кухни: 11.0 м²
Количество комнат: 3
Этаж : 3
Тип дома: Кирпичный
Дополнительная информация: Продаются 3-комнатные квартиры от строящемся пятиэтажном 5-ти подъездном доме в городе Салавате по улице Бекетова, дом № 5 (строительный адрес). Напротив Хирургического центра и детского сада.Есть 3-комнатные квартиры со следующими площадями: 74,18 кв.м.; 77,92 кв.м.; 83,37 кв.м.; Отделка получистовая. Полы выровнены стяжкой. Штукатурка стен идеально ровная, готовая к финишным работам. Окна с тройным остеклением. Лоджии застеклены такими же качественными пластиковыми профилями.Квартиры со всеми необходимыми инженерными коммуникациями, со стояками и счетчиками горячего и холодного водоснабжения (ГВС и ХВС), внутренней разводкой электропроводки и установкой счетчиков электрической энергии, установкой розеток, выключателей и патронов, разводкой системы отопления с установкой отопительных приборов. В кухне: газовая плита, газовый счетчик, линолеум и межкомнатная дверь. Входные двери – железные, отличного качества. Дом утеплен специальными материалами ТЕХНОНИКОЛЬ для эффективной теплоизоляции, что позволит значительно сэкономить расходы на обогрев квартиры.Территория дома будет обустроена детской площадкой, освещением и местами для парковки.Квартиры выгодно расположены в южной части города, где приближенность к лесопарковой зоне и берегу реки Белой обеспечивает комфортное проживание благодаря чистому воздуху, и в то же время близостью развитой инфраструктуры: остановки общественного транспорта, магазины, супермаркеты: «Матрица», «Ярмарка», «Пятёрочка», Аптеки, детский сад, парикмахерские, Нефтяной университет, бассейн «Вега», Хирургический центр, автоцентры, автомойка, Сбербанк.Срок сдачи дома – сентябрь 2016 года.Продажа возможна как за наличный расчет, так и в ипотеку в следующих банках: СБЕРБАНК, Газпромбанк, Россельхозбанк, ВТБ 24. Вы также можете предложить свой банк, где Вам одобрили ипотеку.Заявку на ипотеку в СБЕРБАНК Вы можете подать прямо в нашем офисе «ЭКСПЕРТ» на Ленина, 33 (между городской стоматологией и магазином «Полушка»).ВНИМАНИЕ!!! Возможно использовать материнский капитал в качестве первоначального взноса.Цена крайних этажей –  от 34 тыс. рублей за 1 кв.м., средних этажей –  от 35 тыс. рублей за 1 кв.м.Услуги риэлтора оплачивает застройщик!

Местоположение

Город: Салават
Адрес: ул. Бекетова, д.5

Объявление в архиве