Продажа 1-комнатная квартира, Уфа, ул. Степана Злобина, д.2 стр.

Цена:
2 318 000 Р
Тип объявления: Продажа

Информация о недвижимости

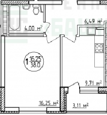
Площадь жилая: 16.0 м²
Площадь кухни: 9.0 м²
Количество комнат: 1
Этаж : 12
Тип дома: Монолит/кирпич
Дополнительная информация: В Зеленой роще продается большая, теплая и красивая однокомнатная квартира, 38 кв.м. Дом находится на пересечении улиц Акназарова и Злобина. Что обеспечивает хороший транспортный доступ к основным дорогам Уфы - Менделеева, Бакалинская и Салавата Юлаева. При этом дом защищен от шума города, а рядом находятся торговые центры и супермаркеты. Дом будет сдан до конца 2016 года, и уже вставляются окна и ведется остекление лоджий. Дом монолитно-каркасный, утепление минераловатное с вентилируемым фасадом. Окна с видом на ночной город! Во дворе будет красочная детская площадка с удобными качелями и мягким песочком.Оформление по договору долевого участия по 214-ФЗ.Помогаем быстро оформить ипотеку от 10,9%.

Местоположение

Город: Уфа
Адрес: ул. Степана Злобина, д.2 стр.

Объявление в архиве