Продажа 2-комнатная квартира, Уфа, ул. проспект Октября, д.63/5

Цена:
3 000 000 Р
Тип объявления: Продажа

Информация о недвижимости

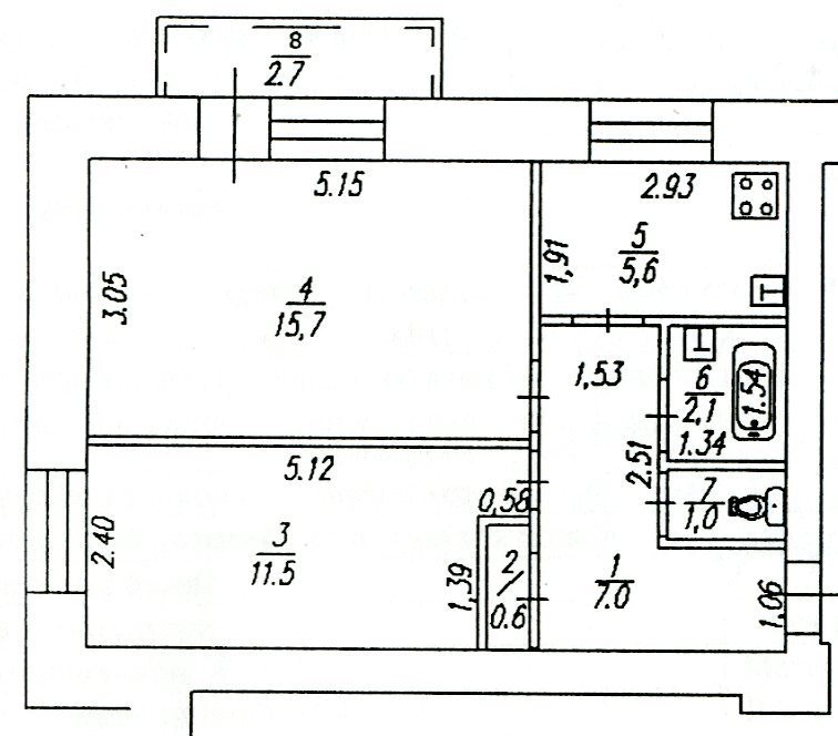
Площадь жилая: 27.2 м²
Площадь кухни: 5.6 м²
Количество комнат: 2
Этаж : 5
Тип дома: Кирпичный
Дополнительная информация: Продается 2-комнатная квартира по Проспекту Октября д. 63/5, ост. Юношеская библиотека. Квартира общей площадью 44.3 кв. м., жилая 27.2 кв.м., кухня 6 кв.м.  Квартира расположена на 5/9 кирпичного дома. Комнаты изолированные, санузел раздельный. Квартира светлая и уютная, находится в жилом состоянии. Дом одноподъездный. В подвале есть место для хранения овощей.Дом расположен в хорошо развитом районе: рядом супермаркет Матрица,  кафе, Связной аптеки, в шаговой доступности три детских сада №№198,218,208, хорошая школа № 31,  детская  поликлиника, клиника Будь здоров. Близость парка  им. Гафури, Государственного русского драмтеатра, Кинотеатра Искра   позволит прекрасно проводить время отдыха всей семьей. Доступность общественного транспорта позволит быстро добраться в любую точку города.Срочная чистая продажа!Возможен обмен на3-комнатную квартиру в районе ул. Зорге, ул. Шафиева, Проспекта Октября. 

Местоположение

Город: Уфа
Адрес: ул. проспект Октября, д.63/5

Объявление в архиве