Продажа 2-комнатная квартира, Уфа, ул. Загородная, д.38А

Цена:
1 600 000 Р
Тип объявления: Продажа

Информация о недвижимости

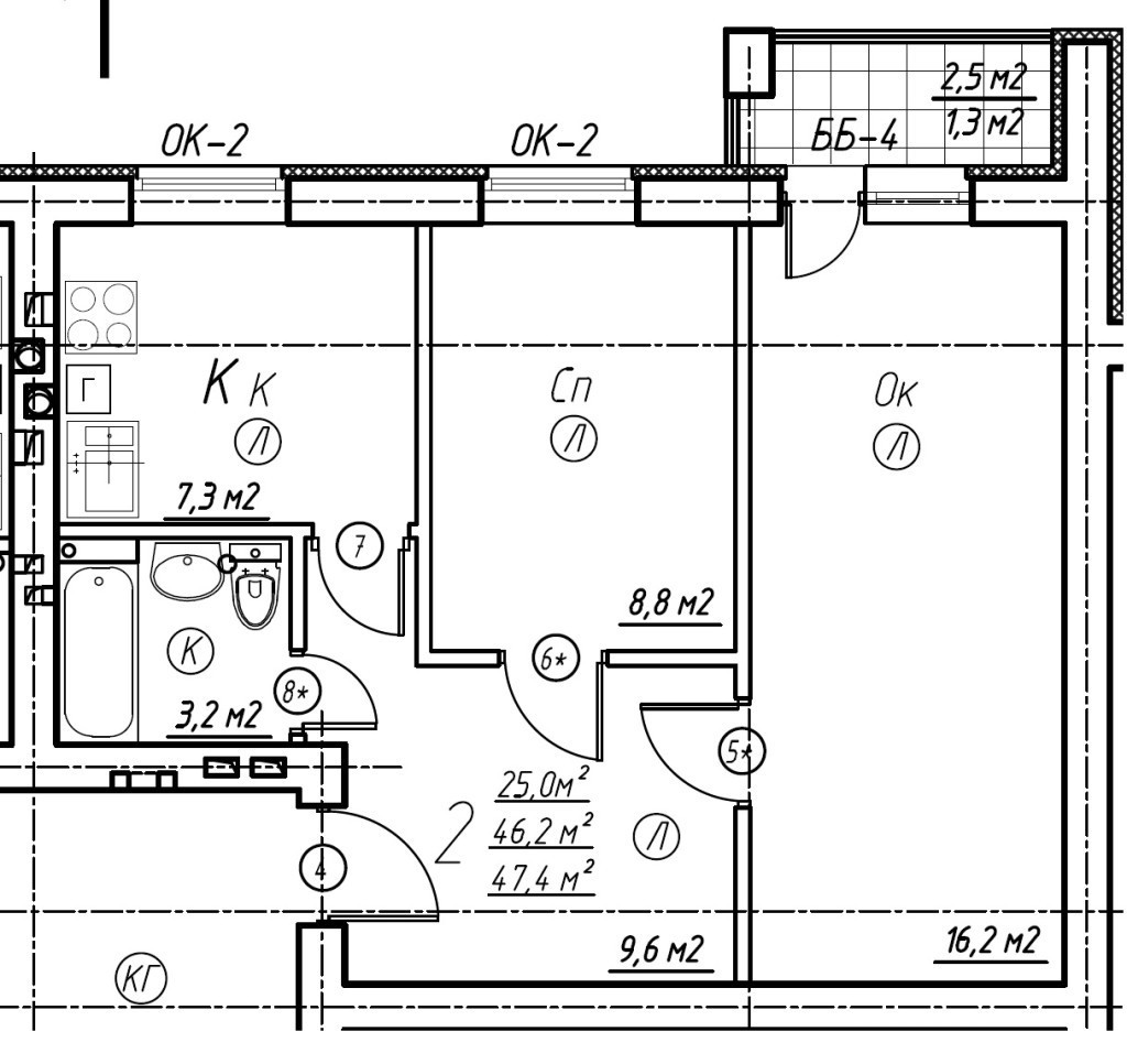
Площадь жилая: 25.0 м²
Площадь кухни: 7.3 м²
Количество комнат: 2
Этаж : 3
Тип дома: Кирпичный
Дополнительная информация:          Продается 2-квартира в Жилом Комплексе Новобулгаково. Квартира располагается на 3 этаже 3 – этажного кирпичного дома.   Общая площадь квартиры 46,2 кв.м., жилая 25 кв.м. кухня 7,3 кв.м.    Застройка 15 квартал.         В квартире установлен индивидуальный газовый котел.          Коммуникации централизованные: водоснабжение, канализация, электроснабжение. Индивидуальное газовое отопление. Интернет и телефония заведены в поселок, асфальтированные дороги, благоустроенная территория.       Транспортная связь с городом осуществляется 101, 110 маршрутом. Сдача 2 кв. 2015 года. Продажа по договору долевого участия с регистрацией в рос реестре согласно 214 ФЗ ЖК Новобулгаково - поселок, сочетающий в себе комфорт проживания на природе со всеми преимуществами городской жизни. Поселок расположен в 30 км. (20-30 мин. езды) от  г. Уфы, обладает современной развитой инфраструктурой и прекрасными лесами. Жителям будут доступны школа, три детских садика, магазины, аптеки и т.д. Внешние и внутренние автобусные маршруты. Есть другие варианты квартир! Звоните, уточняйте! Отличная альтернатива таким районам как: Дема, Затон, Миловский парк ,Новая Миловка, Михайловка, Иглино, Цветы Башкирии, Чесноковка, Спутник, Дубрава, Новобулгаково, Лебяжий, Дагестанская ,Союзная, Летчиков, Алексеевка, Новомаксимовка.

Местоположение

Город: Уфа
Адрес: ул. Загородная, д.38А

Объявление в архиве