Продажа 1-комнатная квартира, Уфа, ул. Первомайская, д.71/4

Цена:
1 927 000 Р
Тип объявления: Продажа

Информация о недвижимости

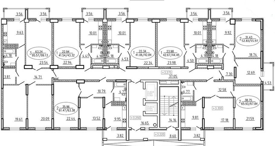
Площадь жилая: 22.34 м²
Площадь кухни: 10.0 м²
Количество комнат: 1
Этаж : 9
Тип дома: Монолит/кирпич
Дополнительная информация: Продается однокомнатная квартира в строящемся доме по ул. Первомайской, д.71 литер 4. Квартира расположена на 9 из 18 этаже, материал строительства - монолит+кирпич. Общая площадь 42,84 кв. м., жилая 22,34, кухня 10 кв. м. Продаваемая квартира имеет классическую планировку. При входе в квартиру попадаем в небольшую прихожую, слева совмещенный санузел площадью 4,18 кв м, прямо- кухня с выходом на лоджию, а справа жилая комната прямоугольной формы площадью 22,34кв м. Окна на кухне и в комнате выходят на юго-восток, в сторону ул.Кремлевская. Получистовая отделка, срок сдачи 4 квартал 2016 года.  Оформление по Договору долевого участия согласно 214ФЗ с обязательной регистрацией в Росреестре. Возможна ипотека ВТБ24. Два детских сада находятся в соседнем дворе, в шаговой доступности гимназия №111, остановка "ул. Свободы". Очень развитая инфраструктура микрорайона.

Местоположение

Город: Уфа
Адрес: ул. Первомайская, д.71/4

Объявление в архиве