Продажа 2-комнатная квартира, Уфа, ул. Первомайская, д.71/3 стр. секция В

Цена:
3 359 000 Р
Тип объявления: Продажа

Информация о недвижимости

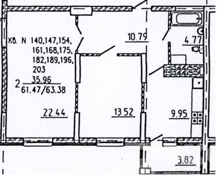
Площадь жилая: 35.96 м²
Площадь кухни: 9.95 м²
Количество комнат: 2
Этаж : 16
Тип дома: Кирпичный
Дополнительная информация: Продается 2к.квартира в новом строящем доме, по улице Первомайская, площадью 63.38 кв.м. Отделка черновая. Срок сдачи 3 кв. 2015 г. Договор долевого участия. Возможна ипотека. Оформление по 214 ФЗ с обязательной регистрацией в Росреестре.В соседнем дворе два детских сада, гимназия №111, остановка "ул. Свободы". Предприятия обслуживания в шаговой доступности.Подбираем квартиры в новостройке в любом районе города Уфы и РБ - от ведущих застройщиков Уфы, а так же от подрядных организаций (подрядчиков) и инвесторов по ценам Ниже, чем у застройщика.Мы анализируем риски, репутацию и документацию, работаем только с проверенными застройщиками.Обратившись к нам Вы получите- подбор новостройки по вашим требованиям,- бронирование понравившегося варианта,- юридическое сопровождение, организацию заключения сделки и регистрации договора.В случае продажи и встречной покупки жилья, мы поможем быстро найти покупателя на Вашу квартиру.

Местоположение

Город: Уфа
Адрес: ул. Первомайская, д.71/3 стр. секция В

Объявление в архиве