Продажа 1-комнатная квартира, Уфа, ул. Мажита Гафури, д.83

Цена:
6 243 000 Р
Тип объявления: Продажа

Информация о недвижимости

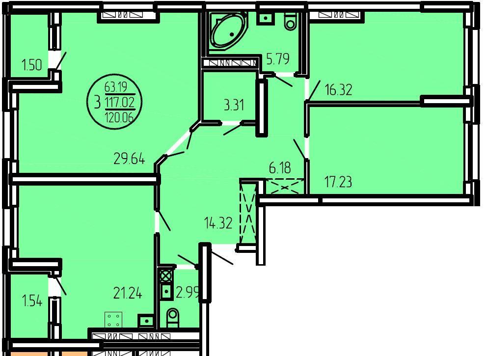
Площадь жилая: 63.19 м²
Площадь кухни: 21.24 м²
Количество комнат: 1
Этаж : 10
Тип дома: Кирпичный
Дополнительная информация: Продается 1к.квартира в новом строящемся жилом комплексе "Аврора-сити", площадью 35.33 кв.м. Жилой комплекс Аврора – Сити – это 14 сблокированных секционных жилых домов от 10 до 25 этажей, которые образуют букву «П».Месторасположение: исторический центр города Уфы, ограничен улицами Гафури, Красина, Султанова, Чернышевского (квартал №370).). Развитая инфраструктура старого центра - в шаговой доступности находятся: БГПУ, Педагогический колледж, Уфимский медицинский колледж, СДЮШСР, Супермаркет Байрам, Центр раннего детского развития "Солнечный круг", Детсады № 307, 225, 19, № 10, Башкирский лицей №2, ТЦ Красинский. В 2-х кварталах элитная гимназия №91.Первая очередь строительства – секции 1А,1Б,1В,1Г, по улице Гафури (с 79 по 97 дома старой застройки) планируется к вводу в эксплуатацию в 4 квартале 2017 года. Комплекс будет сдаваться посекционно. Квартиры сдаются с получистовой отделкой (с сантехникой).Срок сдачи 4 квартал 2017 года.Подбираем квартиры в новостройке в любом районе города Уфы и РБ - от ведущих застройщиков Уфы, а так же от подрядных организаций и инвесторов по ценам Ниже, чем у застройщика.Мы анализируем риски, репутацию и документацию, работаем только с проверенными застройщиками.Обратившись к нам Вы получите- подбор новостройки по вашим требованиям,- бронирование понравившегося варианта,- юридическое сопровождение, организацию заключения сделки и регистрации договора.В случае продажи и встречной покупки жилья, мы поможем быстро найти покупателя на Вашу квартиру.

Местоположение

Город: Уфа
Адрес: ул. Мажита Гафури, д.83

Объявление в архиве