Продажа 2-комнатная квартира, Уфа, ул. Энтузиастов, д.10 стр, Литер 1

Цена:
3 906 000 Р
Тип объявления: Продажа

Информация о недвижимости

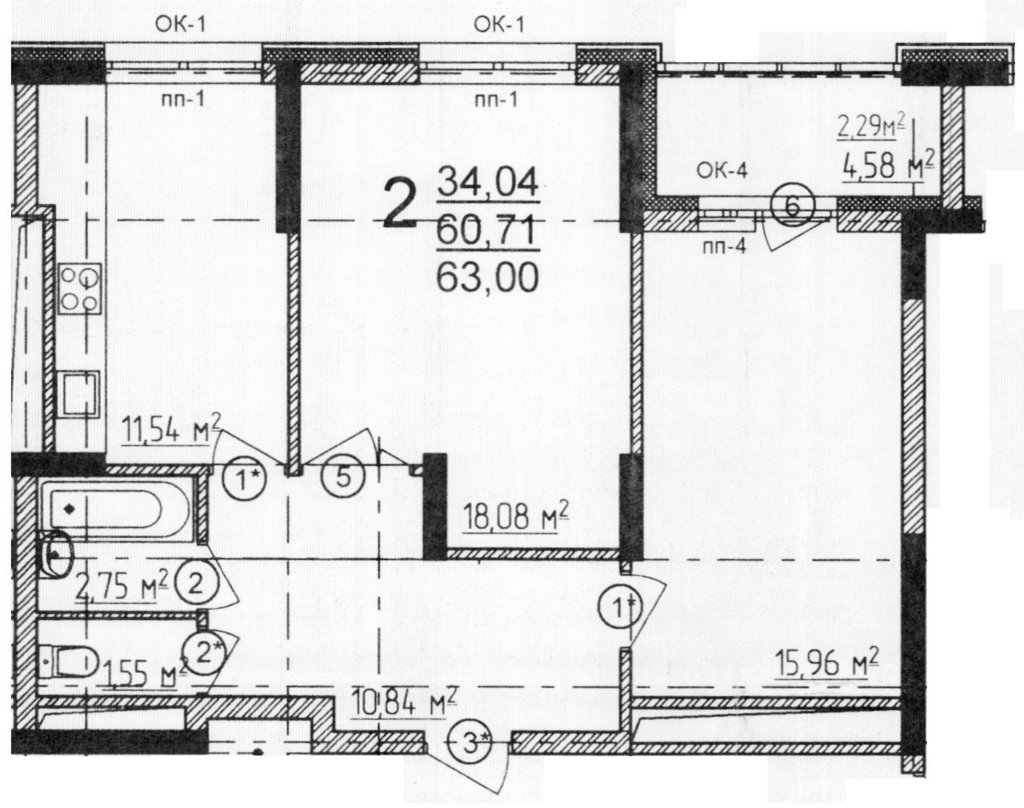
Площадь жилая: 34.04 м²
Площадь кухни: 11.54 м²
Количество комнат: 2
Этаж : 8
Тип дома: Кирпичный
Дополнительная информация: Продается 2к. квартира 63.00кв. м в новом строящемся доме по ул. Энтузиастов, 10 стр., Литер 1.Отделка квартир чистовая: стены - обои, пол - линолеум, предусмотрена входная дверь, проводятся разводка отопления, водо- и электроразводки, разводка канализации.Фактический срок сдачи 4 квартал 2016 г. Договор долевого участия с регистрацией в Регистрационной палате.Возможна Ипотека (Сбербанк,ВТБ-24, Россельхозбанк)При 100% оплате - скидка.Подбираем квартиры в новостройке в любом районе города Уфы и РБ - от ведущих застройщиков Уфы, а так же от подрядных организаций и инвесторов по ценам Ниже, чем у застройщика.Мы анализируем риски, репутацию и документацию, работаем только с проверенными застройщиками.Обратившись к нам Вы получите- подбор новостройки по вашим требованиям,- бронирование понравившегося варианта,- юридическое сопровождение, организацию заключения сделки и регистрации договора.В случае продажи и встречной покупки жилья, мы поможем быстро найти покупателя на Вашу квартиру.

Местоположение

Город: Уфа
Адрес: ул. Энтузиастов, д.10 стр, Литер 1

Объявление в архиве