Продажа 1-комнатная квартира, Уфа, ул. Комсомольская, д.111 стр.

Цена:
3 226 000 Р
Тип объявления: Продажа

Информация о недвижимости

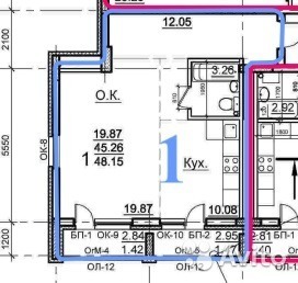
Площадь жилая: 19.87 м²
Площадь кухни: 10.06 м²
Количество комнат: 1
Этаж : 17
Тип дома: Кирпичный
Дополнительная информация: Продается 1к.квартира в новом строящемся доме, по улице Комсомольская 111 стр., площадью 48.15 кв.м.Ведутся отделочные работы.Отделка получистовая.Срок сдачи - конец 2015 г.Подземная парковка.Отличные места общего пользованияНадежный Застройщик.Оформление по ДДУ (214 ФЗ), регистрация в Росреесте.Ипотека есть.Подбираем квартиры в новостройке в любом районе города Уфы и РБ - от ведущих застройщиков Уфы, а так же от подрядных организацийи инвесторов по ценам Ниже, чем у застройщика.Мы анализируем риски, репутацию и документацию, работаем только с проверенными застройщиками.Обратившись к нам Вы получите- подбор новостройки по вашим требованиям,- бронирование понравившегося варианта,- юридическое сопровождение, организацию заключения сделки и регистрации договора.В случае продажи и встречной покупки жилья, мы поможем быстро найти покупателя на Вашу квартиру.

Местоположение

Город: Уфа
Адрес: ул. Комсомольская, д.111 стр.

Объявление в архиве