| Цена: |
2 785 000 Р
|
| Тип объявления: | Продажа |
Информация о недвижимости |
|
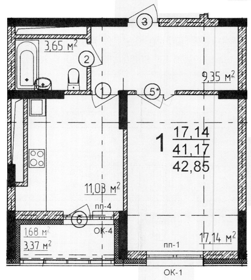
| Площадь жилая: | 17.14 м² |
| Площадь кухни: | 11.03 м² |
| Количество комнат: | 1 |
| Этаж : | 12 |
| Тип дома: | Кирпичный |
| Дополнительная информация: | Продается 1к. квартира 42.85 кв. м в новом строящемся доме по ул. Энтузиастов, 10 стр., Литер 1.Отделка квартир чистовая: стены - обои, пол - линолеум, предусмотрена входная дверь, проводятся разводка отопления, водо- и электроразводки, разводка канализации.Фактический срок сдачи 4 квартал 2016 г. Договор долевого участия с регистрацией в Регистрационной палате.Возможна Ипотека (Сбербанк,ВТБ-24, Россельхозбанк)100% оплате - скидка. |
Местоположение |
|
| Город: | Уфа |
| Адрес: | ул. Энтузиастов, д.10 стр, Литер 1 |
Объявление в архиве |