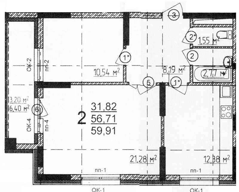
Продажа 2-комнатная квартира, Уфа, ул. Энтузиастов, д.10 стр, Литер 2

Цена:
3 695 000 Р
Тип объявления: Продажа

Информация о недвижимости

Площадь жилая: 13.82 м²
Площадь кухни: 12.38 м²
Количество комнат: 2
Этаж : 17
Тип дома: Кирпичный
Дополнительная информация: Продается 2к. квартира 59.91 кв. м в новом строящемся доме по ул. Энтузиастов, 10 стр., Литер 2.Отделка квартир чистовая: стены - обои, пол - линолеум, предусмотрена входная дверь, проводятся разводка отопления, водо- и электроразводки, разводка канализации.Фактический срок сдачи 4 квартал 2016 г. Договор долевого участия с регистрацией в Регистрационной палате.Возможна Ипотека (Сбербанк,ВТБ-24, Россельхозбанк)При 100% оплате - скидка.

Местоположение

Город: Уфа
Адрес: ул. Энтузиастов, д.10 стр, Литер 2

Объявление в архиве