Продажа 2-комнатная квартира, Уфа, ул. Ворошилова, д.28 стр.

Цена:
2 192 000 Р
Тип объявления: Продажа

Информация о недвижимости

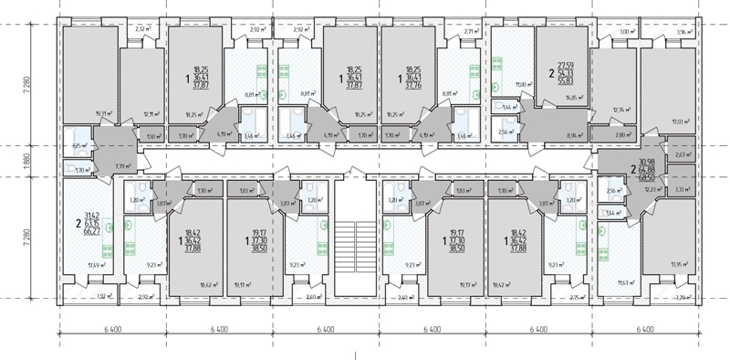
Площадь жилая: 30.98 м²
Площадь кухни: 11.67 м²
Количество комнат: 2
Этаж : 1
Тип дома: Кирпичный
Дополнительная информация: Продается 2к.квартира в новом строящемся жилом комплексе "Байрам", площадью 68.50 кв.м.Новый жилой комплекс расположен в 17 км от г. Уфы в сторону Шакши и состоит из шести 5-этажных кирпичных домов. Квартиры улучшенной планировки. На каждом этаже{предусмотрено размещение 1к квартир, площадью от 37,76 кв.м. (7 шт), двухкомнатных – площадью от 55,83 кв.м. (3 шт). Чистовая отделка. Регистрация договора долевого участия в Росреестре. Экологически чистый район. Транспортная доступностьИнфраструктура: магазины, детские сады, школы.Благоустройство: паркинг, площадки для отдыха детей и взрослых, озеленение, асфальтирование.

Местоположение

Город: Уфа
Адрес: ул. Ворошилова, д.28 стр.

Объявление в архиве