Продажа 1-комнатная квартира, Уфа, ул. Степана Злобина, д.2 стр.

Цена:
2 496 000 Р
Тип объявления: Продажа

Информация о недвижимости

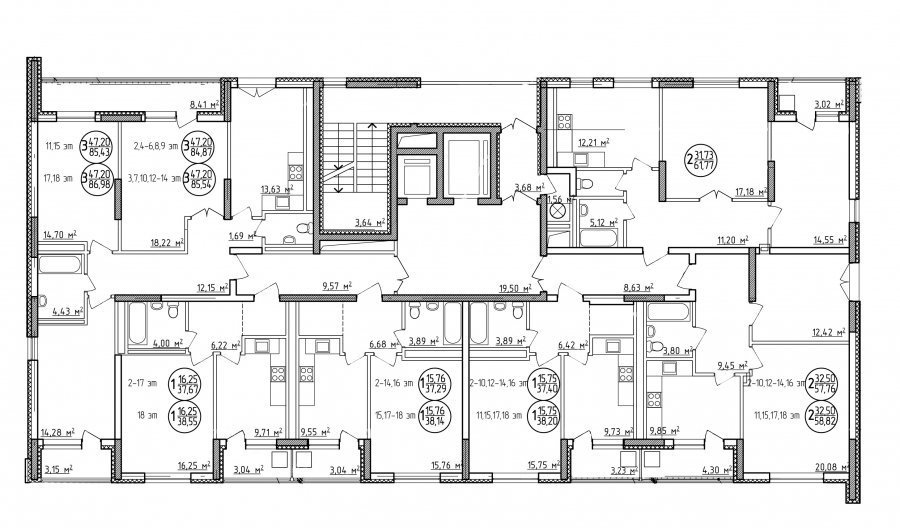
Площадь жилая: 16.25 м²
Площадь кухни: 9.71 м²
Количество комнат: 1
Этаж : 15
Тип дома: Кирпичный
Дополнительная информация: Продам однокомнатную квартиру в мкр. Зеленая роща, площадь 38/16.25/9.71.м, ул. Степана Злобина.Объект сдается с черновой отделкой. Сдача дома 3 кв.2016 г.Ипотека. Договор долевого участия.

Местоположение

Город: Уфа
Адрес: ул. Степана Злобина, д.2 стр.

Объявление в архиве