Продажа 1-комнатная квартира, Уфа, ул. Черниковская, д.18

Цена:
2 350 000 Р
Тип объявления: Продажа

Информация о недвижимости

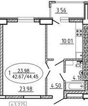
Площадь жилая: 24.0 м²
Площадь кухни: 10.01 м²
Количество комнат: 1
Этаж : 3
Тип дома: Монолит/кирпич
Дополнительная информация: Продается однокомнатная квартира в выстроенном и сданном доме по ул.Черниковская 18 (ранее-Первомайская 71/3). Материал строительства монолит+кирпич. Квартира на 3 этаже 18-этажной секции. Площадь общая 44.45 кв м, жилая 24, кухня 10.01 кв м. Все окна на юго-восток, в сторону ул. Кремлевской. В продаваемой квартире комнаты и кухня правильной геометрической формы, выход на лоджию из кухни, санузел площадью 4.18 кв м совмещен.Отделка получистовая, дом сдан. Чистая продажа. Ключи в день сделки.  Ипотека возможна. Очень удобный район для проживания: в соседнем дворе два д/сада(№№152 и 242), 5-10 минут ходьбы до гимназии №111 и средней школы №67. Ближайшие остановки "Свободы(ул.Первомайская)" и "Школа №65".

Местоположение

Город: Уфа
Адрес: ул. Черниковская, д.18

Объявление в архиве