Продажа 1-комнатная квартира, Уфа, ул. Степана Злобина, д.2

Цена:
2 525 000 Р
Тип объявления: Продажа

Информация о недвижимости

Площадь жилая: 15.0 м²
Площадь кухни: 11.0 м²
Количество комнат: 1
Этаж : 16
Тип дома: Монолит/кирпич
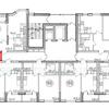
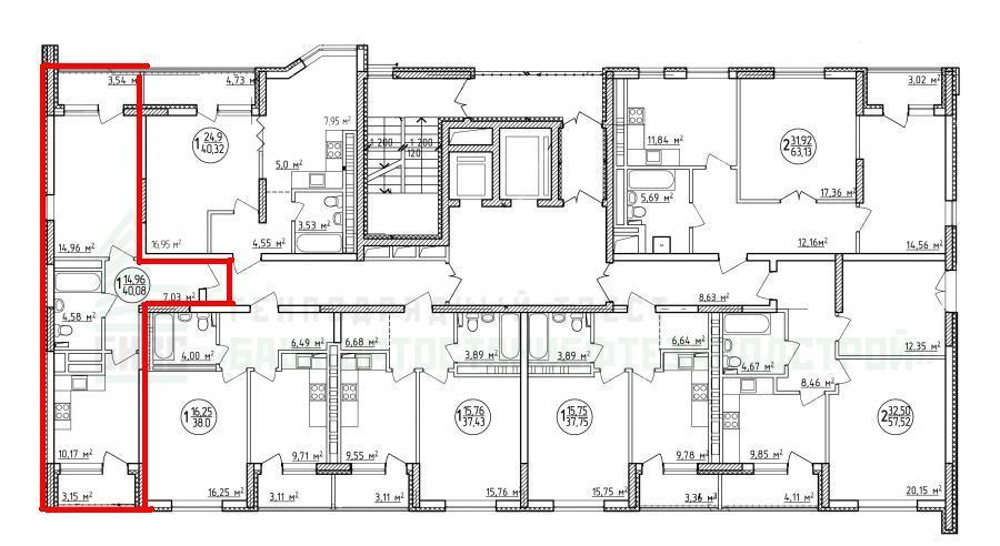
Дополнительная информация: Продается однокомнатная квартира распашонка на 2 ( и на 16 эт) этаже 19-этажного монолитно-кирпичного дома.    Общая площадь  40,08 кв.м.,  жилая 15 кв.м.,  кухня 11 кв.м.. Качественная пред чистовая    отделка. Обустроенная пред домовая территория, подземный паркинг. Сдача 4 квартал 2016 года.  Регистрация в Росреестре в соответствии с законом № 214-ФЗ.     Окна смотрят на ул. Менделеева и противоположную сторону.   Рядом располагаются ТРК Иремель, ТК Радуга, ХБК, школа № 110, детский сад № 244, городская поликлиника № 48, аптеки, парикмахерские. Кдобный выезд на пр.Салавата Юлаева. Цена : 2 525 040р.  – 63 000р/кВ.м.        Есть квартира на 16 этаже. Такая же планировка, но чуть побольше квартира. Площадь  40,95 кв.м., цена: 2 579 850 р. – 63 000р./кВ.м.   Агент по продаже Шагиева Регина Фларитовна.

Местоположение

Город: Уфа
Адрес: ул. Степана Злобина, д.2

Объявление в архиве