Продажа 2-комнатная квартира, Уфа, ул. Первомайская, д.71/4

Цена:
2 890 000 Р
Тип объявления: Продажа

Информация о недвижимости

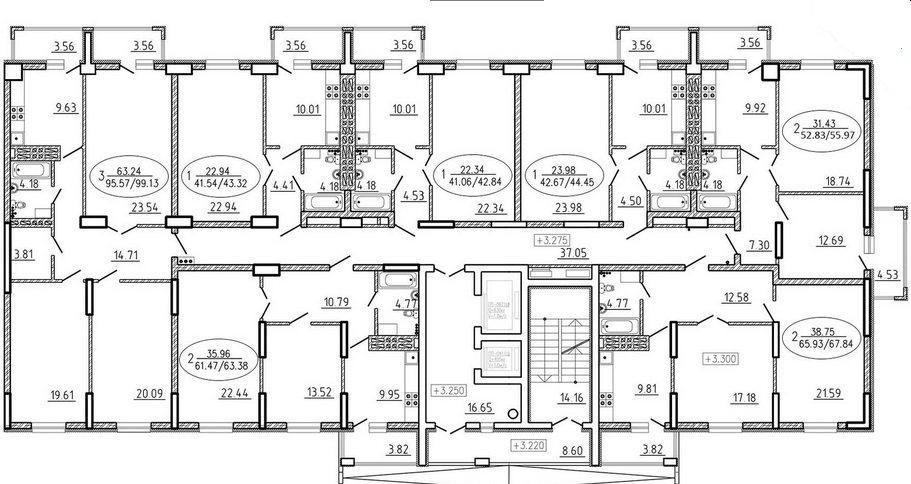
Площадь жилая: 36.0 м²
Площадь кухни: 10.0 м²
Количество комнат: 2
Этаж : 8
Тип дома: Монолит/кирпич
Дополнительная информация: Продается двухкомнатная квартира в ЖК «Первомайский» в строящемся доме по ул. Первомайская д. 71/4.  Этаж 8 из 18ти, материал строительства монолит+кирпич. Общая площадь 63.38, жилая 36, кухня 10 кв.м. Отделка получистовая, дом строится, срок сдачи 4 квартал 2016 года. Планировка предусматривает холл 10.8 кв.м., жилые комнаты площадью 22.5+13.5 кв.м., выход на лоджию из кухни. Комнаты и кухня изолированы, правильной формы. Квартира окнами выходит в сторону бани, во двор. В прихожей площадью 10.8 кв м есть место для большого шкафа-купе, комнаты и кухня изолированы, санузел совмещен, выход на лоджию из кухни. Получистовая отделка, срок сдачи 4 квартал 2016 года. Ипотека возможна. Оформление по Договору долевого участия согласно 214ФЗ с обязательной регистрацией в Росреестре. Есть страхование гражданской ответственности застройщика в соответствии с поправками к 214-ФЗ РФ от 01.10.2015 года. Этаж условный, метраж и этаж квартиры в данном доме можно выбрать. Два детских сада находятся в соседнем дворе, в шаговой доступности гимназия №111, остановка "ул. Свободы". Очень развитая инфраструктура микрорайона

Местоположение

Город: Уфа
Адрес: ул. Первомайская, д.71/4

Объявление в архиве