Продажа 1-комнатная квартира, Уфа, ул. Сочинская, д.15/2

Цена:
51 000 000 Р
Тип объявления: Продажа

Информация о недвижимости

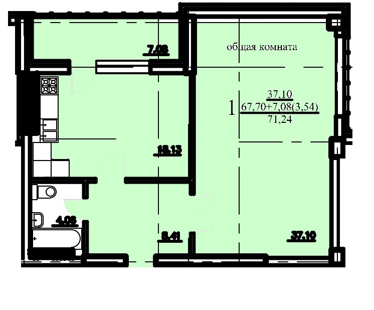
Площадь жилая: 37.1 м²
Площадь кухни: 18.13 м²
Количество комнат: 1
Этаж : 11
Тип дома: Монолит/кирпич
Дополнительная информация: Продается 1-о комн. квартира по ул.Сочинская 15/2, ЖК "Солнечный" , дом монолит+кирпич, черновая отделка, Секция В (10-14 этажей).  Дом сдан в 1 кв 2016 г. Окна выходят на ул Менделеева.Общая площадь 71,24 кв.м., жилая 37,10 кв.м., кухня 18,13 кв.м. Хорошая планировка. Застекленная лоджия из комнаты.Санузел совмещенный.Отделка квартиры черновая (стяжка пола, штукатурка).Оформление по ЖНК , ипотеки нет. Развитая инфраструктура. Рядом школы, дет.сады, поликлиники, парки, скверы, мечеть. 

Местоположение

Город: Уфа
Адрес: ул. Сочинская, д.15/2

Объявление в архиве