Продажа 2-комнатная квартира, Уфа, ул. Архитектора Рехмукова, д.стр.3

Цена:
4 020 000 Р
Тип объявления: Продажа

Информация о недвижимости

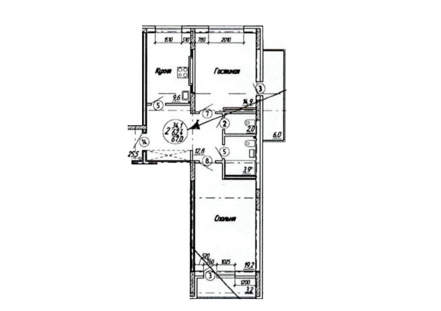
Площадь жилая: 34.0 м²
Площадь кухни: 9.0 м²
Количество комнат: 2
Этаж : 7
Тип дома: Монолит/кирпич
Дополнительная информация: ЖК «Искра» — уникальный в своем роде современный проект.Современный 4-х секционный жилой комплекс с уникальной инфраструктурой.Расположен в географическом центре г.Уфа, в живописном месте района «Глумилино», на пересечении улиц Комсомольская и архитектора РехмуковаВ доме запроектировано 258 квартир. Высота потолков 2,7 м. Удобная транспортная развязка, легкая доступность ко всем основным магистралям города – ул. Проспект Октября, ул. Комсомольская, ул. Проспект Салавата Юлаева, ул. МенделееваАрхитектура комплекса Здание обладает уникальной архитектурой, которая является украшением города и выделяется в общей массе городской застройки яркостью, новизной: Просторные подъезды, вестибюли; Благоустроенный двор и территория вокруг комплекса; Панорамное остекление на фасадах дома; Панорамное остекление балконов в квартирах на некоторых этажах

Местоположение

Город: Уфа
Адрес: ул. Архитектора Рехмукова, д.стр.3

Объявление в архиве