Продажа 2-комнатная квартира, Уфа, ул. Октябрьской Революции, д.литер 13 секция А

Цена:
5 512 000 Р
Тип объявления: Продажа

Информация о недвижимости

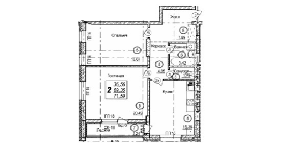
Площадь жилая: 36.56 м²
Площадь кухни: 15.36 м²
Количество комнат: 2
Этаж : 5
Тип дома: Монолит/кирпич
Дополнительная информация: Концепция застройки уникального автономного современного жилого комплекса бизнес-класса предусматривает строительство 9 жилых многоквартирных домов переменной этажности со встроенными объектами бытового обслуживания, торговли и подземными паркингами, оборудованными детскими площадками на придомовой территории.Комфортное и безопасное проживание на территории комплекса обусловлено наличием обширной, продуманной и доступной инфраструктурой района, которая включает в себя общеобразовательную школу на 22 класса, детский сад с бассейном на 110 мест, гостинично-офисный блок с торговым комплексом, отделения банков и т.д.Проект жилого выполнен с учетом всех требований действующих норм и правил по обеспечению условий жизнедеятельности маломобильных групп населения. Для них предусмотрены мероприятия, обеспечивающие безопасное передвижение на улице и беспрепятственный доступ к жилому дому, а также обеспечены места хранения автотранспорта.Проектом предусматривается комплексное благоустройство участка и прилегающей территории с устройством проездов и автопарковок для общественных помещений и гостевых автостоянок для жилых домов.

Местоположение

Город: Уфа
Адрес: ул. Октябрьской Революции, д.литер 13 секция А

Объявление в архиве