Продажа 3-комнатная квартира, Уфа, ул. Петропавловская, д.х

Цена:
6 791 000 Р
Тип объявления: Продажа

Информация о недвижимости

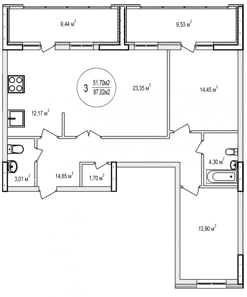
Площадь жилая: 51.7 м²
Площадь кухни: 12.17 м²
Количество комнат: 3
Этаж : 11
Тип дома: Монолит/кирпич
Дополнительная информация: Продается трехкомнатная квартира в городе Уфа Советского района в Жилом комплексе «Петропавловский», ограниченный бульваром Ибрагимова, улицами Пархоменко, Краснодонской и Цюрупы на 11/25 этажного дома (подъезд 1). Стены из монолитного каркаса, заполненного керамическим полнотелым кирпичом с утеплителем и навесным вентилируемым фасадом с финишным слоем из керамогранитной плитки. Площадь квартиры 97.02/51.70/12.17+23.35. Две лоджии (выход из кухни и из жилой комнаты), два с/у (совмещенные). Распашонка. Окна смотрят на улицы: Петропавловская (бульвар Ибрагимова) и Краснодонская. Дом состоит из четырех секций, переменной этажности (от 21 до 26). Каждая секция оборудована одним пассажирским и двумя грузопассажирскими лифтами. Лифты из паркинга, расположенного под домом, будут подниматься в жилую часть. Все помещения парковки оборудованы системой автоматического пожаротушения. На первом этаже жилого дома будут располагаться торгово-офисные помещения, банки, продуктовые магазины. Отделка получистовая. Срок сдачи дома 3 квартал 2018 года. Оформление через ДДУ с регистрацией в УФСГРКиК по РБ  Возможна ипотека (от 8,5% годовых), рассрочка до конца строительства.    Также есть выбор этажей и площадей.  

Местоположение

Город: Уфа
Адрес: ул. Петропавловская, д.х

Объявление в архиве