Продажа 1-комнатная квартира, Уфа, ул. Максима Горького, д.56

Цена:
1 804 000 Р
Тип объявления: Продажа

Информация о недвижимости

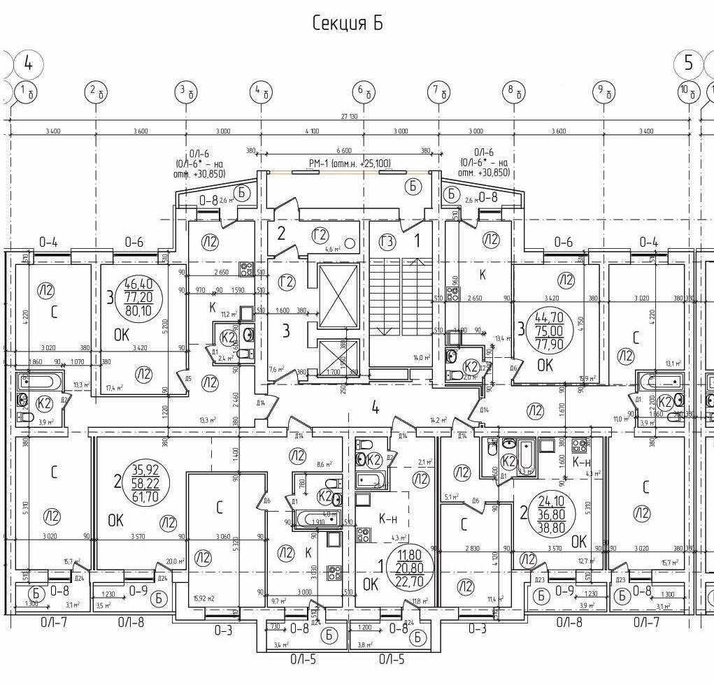
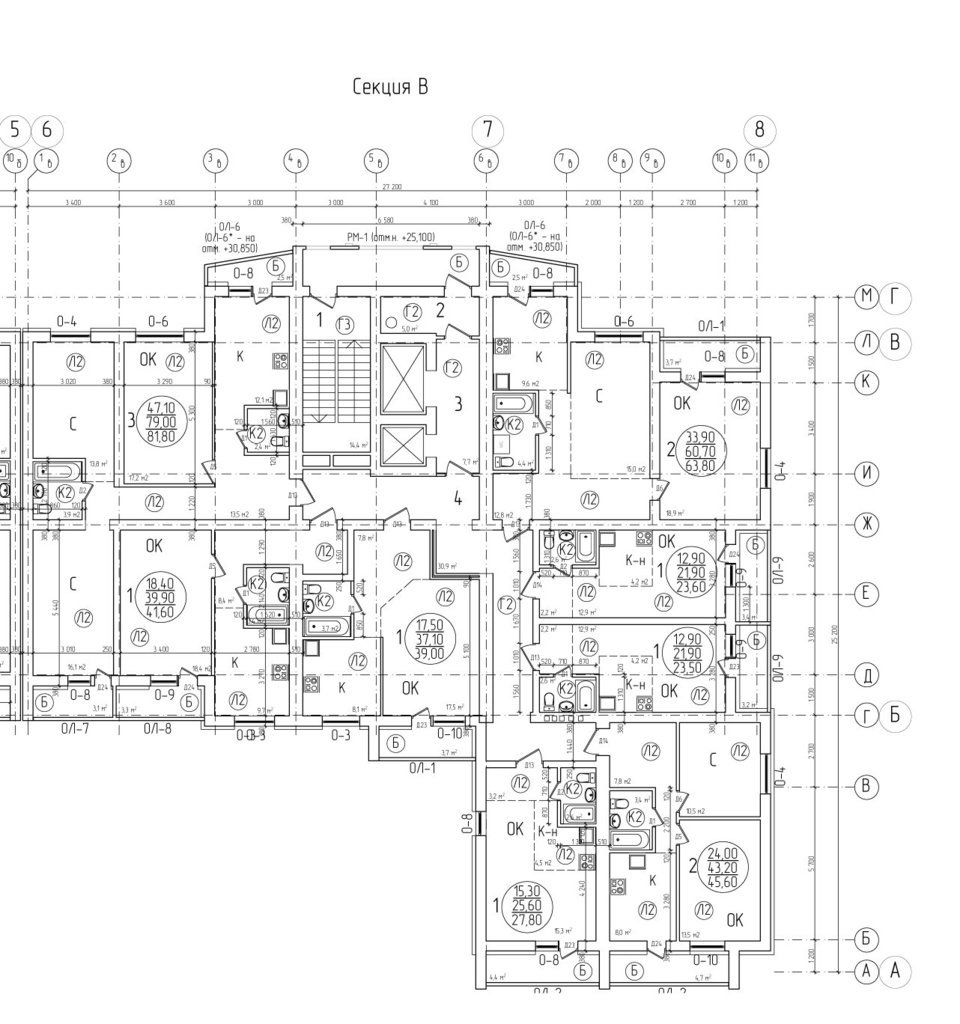
Площадь жилая: 15.79 м²
Площадь кухни: 6.8 м²
Количество комнат: 1
Этаж : 8
Тип дома: Монолит/кирпич
Дополнительная информация: Квартал состоит из 5 10-ти-12-ти этажных домов со встроенными магазинами, банками, предприятиями обслуживания.Развитая инфраструктура района - рядом находится Уфимский Государственный Нефтяной Технический Университет, стадион «Нефтяник», Городская больница №10, лучшие школы и гимназии а также детские сады г. Уфы.Получистовая отделка: подготовка под пол, штукатурка стен без шпатлёвки, входная металлическая дверь и дверной замок, оконные блоки из пластикового профиля, остекление лоджий, электроразводка, электросчетчик, счетчики горячей и холодной воды, и не включает: окончательную чистовую отделка, включая устройство чистых полов с теплозвукоизоляцией, штукатурку дверных откосов, шпаклевку, окраску стен и потолков, установку подоконников, унитаз и умывальник, межкомнатные двери, ванну и электроплиту.

Местоположение

Город: Уфа
Адрес: ул. Максима Горького, д.56

Объявление в архиве