| Цена: |
3 328 000 Р
|
| Тип объявления: | Продажа |
Информация о недвижимости |
|
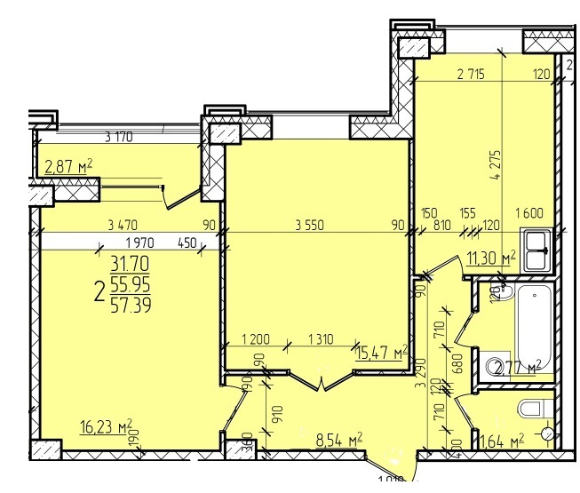
| Площадь жилая: | 31.7 м² |
| Площадь кухни: | 11.3 м² |
| Количество комнат: | 2 |
| Этаж : | 1 |
| Тип дома: | Монолит/кирпич |
| Дополнительная информация: | Продается 2-комнатная квартира по ул.Кавказская, стр.8 мкр.Юрюзань.Общая площадь 57,39 кв.м., жилая 31,70 кв.м., кухня 11,30 кв.м. Хорошая планировка. Застекленная лоджия из комнаты. Санузел раздельный.Отделка квартиры черновая.Срок сдачи 4 квартал 2016 года.Рядом ул.Софьи Перовской, Сочинская, Пр.Салавата Юлаева, Пугачева, Заки Валиди, Менделеева.Развитая инфраструктура. Рядом школы, дет.сады, поликлиники, парк, магазины, банки. |
Местоположение |
|
| Город: | Уфа |
| Адрес: | ул. Кавказская, д.8 |
Объявление в архиве |