Продажа 2-комнатная квартира, Уфа, ул. Ворошилова, д.28

Цена:
2 108 000 Р
Тип объявления: Продажа

Информация о недвижимости

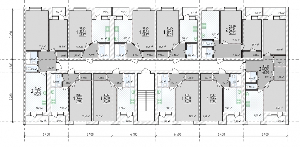
Площадь жилая: 30.98 м²
Площадь кухни: 11.62 м²
Количество комнат: 2
Этаж : 5
Тип дома: Кирпичный
Дополнительная информация: Продается 2-х  комнатная квартира в ЖК Байрам, по ул. Ворошилова. Общая площадь = 68.5, 1 комната = 17.03 , вторая комната = 13.95, Кухня = 11.67. Удобная планировка.  -Чистовая отделка. Регистрация договора долевого участия в Росреестре. Экологически чистый район. Транспортная доступность. Инфраструктура: магазины, детские сады, школы. Благоустройство: паркинг, площадки для отдыха детей и взрослых, озеленение, асфальтированиеЖК «Байрам» Уфа находится в Иглино, территория строительства занимает 3 гектара. Всего 7 домов. Территория огорожена. Здесь будет: свой магазин в 1500 кв.м.; парковки; площадки для детей и спорта. Есть вебкамера, по которой можно наблюдать ход строительства. Квартиры в Иглино от застройщика ООО «Башлстк» идут счистовой отделкой: обои; линолеум; коричневые окна; натяжные потолки.

Местоположение

Город: Уфа
Адрес: ул. Ворошилова, д.28

Объявление в архиве