Продажа 3-комнатная квартира, Уфа, ул. Коммунистическая, д.13/1 стр.

Цена:
6 939 000 Р
Тип объявления: Продажа

Информация о недвижимости

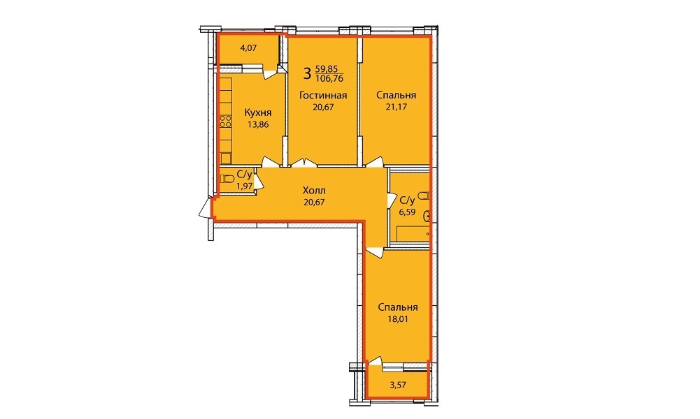
Площадь жилая: 59.85 м²
Площадь кухни: 13.86 м²
Количество комнат: 3
Этаж : 6
Тип дома: Монолит/кирпич
Дополнительная информация: Многие стремятся приобрести первичное жилье в центре города. В ЖК "Старый Центр" каждый найдет для себя все самое важное. Два новых кирпичных дома на 14 и 25 этажей с высококачественной отделкой подъездов, домофоном на каждом подъезде и видеонаблюдением на территории двора. Просторные квартиры различной планировки. Кроме того, на верхних этажах домов будут располагаться двухуровневые квартиры с возможностью выхода на эксплуатируемую кровлю, где можно обустроить террасу для отдыха. Бесшумные высокоскоростные лифты Korn. Двухуровневый паркинг на 103 места боксового типа, также имеются боксы семейного типа на два автомобиля. Обособленный въезд на каждый этаж паркинга и возможность попасть туда прямо из дома – на лифте или по лестнице. Расположение жилого комплекса в районе с развитой инфраструктурой – на пересечении улиц Коммунистическая и Гафури. Двухподъездный 14-этажный элитный дом класса люкс: консьерж на входе, 104 квартиры, остекленные лоджии, витражные окна, материал постройки – керамический кирпич. Одноподъездный 25-этажный дом комфорт-класса, консьерж на входе, материал строительства – кирпич, высокоуровневые окна с поэтапным контролем установки, в подвале – двухэтажные кладовые. Уютная закрытая дворовая территория, оборудованная спортивной и детской игровой площадками. Видеонаблюдение на территории двора. Продается 3-комнатная квартира по ул. Коммунистическая, стр.13/1.Общая площадь 106,76 кв.м., жилая 59,85 кв.м., кухня 13,86 кв.м.Хорошая планировка. Лоджия застеклена. 2 санузла. 2 лоджии из кухни и из комнаты.Отделка квартиры черновая.Дом сдается 2 кв. 2018.Рядом ул.Карла Маркса, Гафури, Коммунистическая, Пушкина, Свердлова, Чернышевского.Развитая инфраструктура. Рядом школы, дет.сады, поликлиники, парк, магазины, банки.

Местоположение

Город: Уфа
Адрес: ул. Коммунистическая, д.13/1 стр.

Объявление в архиве