Продажа 2-комнатная квартира, Иглино, ул. Ленина, д.1

Цена:
1 749 000 Р
Тип объявления: Продажа

Информация о недвижимости

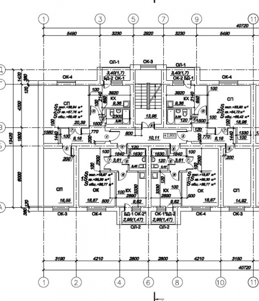
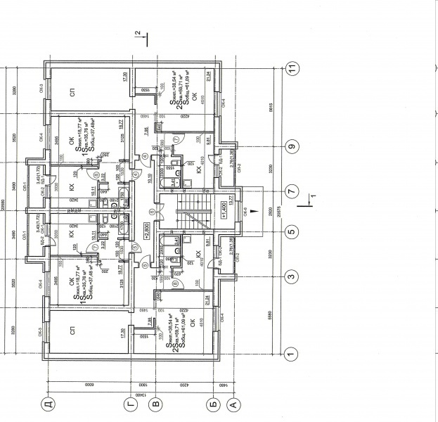
Площадь жилая: 46.0 м²
Площадь кухни: 8.0 м²
Количество комнат: 2
Этаж : 2
Дополнительная информация: Предлагаем купить квартиру в с. Иглино.  Иглино-Центр - это уникальный проект современной застройки жилых домов в экологической зоне, в непосредственной близости к Уфе. Комфортное и безопасное проживание на территории доступной инфраструктурой района ,которая включает в себя школу, детский сад , парковую зону, озеро, отделения банков, храм.Здание: наружние внутренние стены и перегородки из газобетона (ООО «СтройПланета») Облицовка фасада и цоколя из декоративной штукатурки, цветовая гамма которого определена проектом. Фундамент - свайный и сборный железобетонный. Крыша - шатровая из профильного листа. Коммуникации- Электричество, канализация. Теплоснабжение квартир предусматривается индивидуальными котлами Navien. Отделка: цементная стяжка полов , оштукатуренные стены, входная металлическая дверь и дверной замок, оконные блоки из пластикового профиля толщиной 70 мм, электроразводка с установленными розетками и выключателями, электросчетчик, домофонная система. Вся инфраструктура в шаговой доступности- школа, садик, магазины, торговые центры, аптеки, больница, остановка транспорта.Если для покупки данной квартиры Вам необходимо продать свою жил., площадь, Мы можем Вам в этом помочь, обращайтесь по номеру телефону указанному в объявлении.Продажа возможна как за наличный расчет, так и в ипотеку в банках ПАО «СБЕРБАНК», «Газпромбанк», АО «Россельхозбанк», «ВТБ24». Вы так же можете предложить свой банк, где Вам одобрили ипотеку.Заявку на ипотеку в СБЕРБАНК Вы можете подать в нашем офисе. ВНИМАНИЕ!!! Возможно использовать материнский капитал в качестве первоначального взноса. Услуги риэлтора оплачивает продавец. Возможен торг реальному покупателю. Сделки нашего агентства застрахованы в Ингосстрахе полис страхования №433-545-050947/15

Местоположение

Город: Иглино
Адрес: ул. Ленина, д.1

Объявление в архиве