| Цена: |
4 039 000 Р
|
| Тип объявления: | Продажа |
Информация о недвижимости |
|
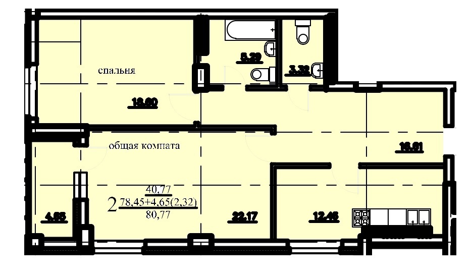
| Площадь жилая: | 40.77 м² |
| Площадь кухни: | 12.46 м² |
| Количество комнат: | 2 |
| Этаж : | 5 |
| Тип дома: | Монолит/кирпич |
| Дополнительная информация: | Продается 2-х комн. квартира по ул.Сочинская 15/2, ЖК "Сочинский" , дом монолит+кирпич, черновая отделка, Секция Д (10-14 этажей). Дом сдан в 4 кв 2016 г. Окна выходят во двор.Общая площадь 80.77 кв.м., жилая 40.77 кв.м., кухня 12.46 кв.м. Хорошая планировка. Застекленная лоджия из комнаты.Санузел раздельный.Отделка квартиры черновая. Оформление по ЖНК , ипотеки нет. Развитая инфраструктура. Рядом школы, дет.сады, поликлиники, парки, скверы. |
Местоположение |
|
| Город: | Уфа |
| Адрес: | ул. Сочинская, д.15/2 |
Объявление в архиве |