Продажа 3-комнатная квартира, Уфа, ул. Мажита Гафури, д.литер 1А

Цена:
5 981 000 Р
Тип объявления: Продажа

Информация о недвижимости

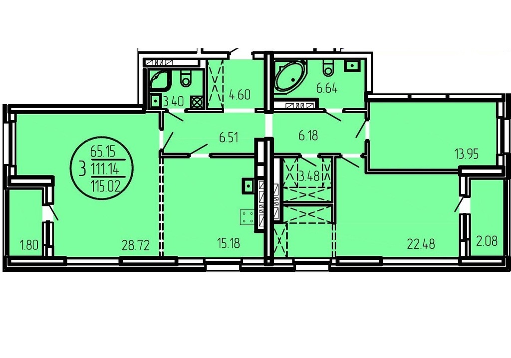
Площадь жилая: 65.15 м²
Площадь кухни: 15.18 м²
Количество комнат: 3
Этаж : 6
Тип дома: Монолит/кирпич
Дополнительная информация: Продается 3–комнатная квартира общей площадью 115,02 кв.м. в строящемся доме в центре Уфы по ул. Гафури, литер 1А Жилой комплекс Аврора - сити состоит из 14 жилых домов от 10 до 25 этажей. Первая очередь строительства – секции 1А,1Б,1В,1Г, расположенные прямо по улице Гафури. Квартира расположена на 9 этаже 24-этажной секции дома, материал строительства - кирпич-монолит. Площадь квартиры 115,02 кв.м.  Квартиры сдаются с предчистовой отделкой.Получено разрешение на строительство. Оформление ведется через ДДУ. Возможна рассрочка. Срок сдачи первой очереди 2 квартал 2018 года. Рядом ул. Мажита Гафури, Чернышевского, Красина, Султанова, Зенцова, Коммунистическая, Свердлова, Аксакова, Карла Маркса, Гоголя, Пушкина, ЖК Аврора, Аврора-сити.

Местоположение

Город: Уфа
Адрес: ул. Мажита Гафури, д.литер 1А

Объявление в архиве