Продажа 3-комнатная квартира, Уфа, ул. Октябрьской Революции, д.62

Цена:
7 971 000 Р
Тип объявления: Продажа

Информация о недвижимости

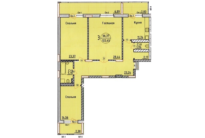
Площадь жилая: 66.37 м²
Площадь кухни: 11.74 м²
Количество комнат: 3
Этаж : 7
Тип дома: Монолит/кирпич
Дополнительная информация: Продается 3 комнатная квартира в ЖК Квартал по ул. Октябрьская Революция 62. Большая кухня, удобная планировка, транспортная доступность, развитая инфраструктура. Рядом находится училище Искусств, Гимназия № 3 , ВУЗы,, исторический центр города, набережная реки, монумент дружбы, 5 км. до ТЦ Мега, рядом находится городской пляж, проспект Салавата Юлаева. Квартиры продаются согласно федерального закона «О долевом участии» №214, максимально защищающего покупателя. Это значит, что квартиру можно купить по выгодной цене на старте строительства в условиях полной защищенности и безопасности.

Местоположение

Город: Уфа
Адрес: ул. Октябрьской Революции, д.62

Объявление в архиве