Продажа 1-комнатная квартира, Уфа, ул. Ленина, д.ЖК Дом на Ленина

Цена:
2 250 000 Р
Тип объявления: Продажа

Информация о недвижимости

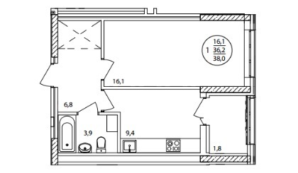
Площадь жилая: 16.1 м²
Площадь кухни: 9.4 м²
Количество комнат: 1
Этаж : 8
Тип дома: Монолит/кирпич
Дополнительная информация: Продается 1-комнатная квартира площадью 38,0 кв.м. в ЖК "Дом на Ленина".Жилая площадь - 16.1; кухня - 9,4. Санузел совмещенный, лоджия застеклена. Есть вариант этажей. Квартиры сдаются с улучшенной черновой отделкой.Срок сдачи 4 квартал 2018 года.Получено разрешение на строительство. Оформление ведется через ДДУ с регистрацией в регпалате.«Дом на Ленина» – это новый жилой комплекс бизнес-класса, расположенный в центре Уфы. Две ярких современных 25-этажных башни комплекса воплощают в жизнь мечты ценителей комфорта и технологий. Три главные идеи, которые мы заложили в основу проекта — ТЕХНОЛОГИИ, КОМФОРТ И БЕЗОПАСНОСТЬ.ЖК «Дом на Ленина» — это самые современные технологии строительства и инженерные решения, которые позволяют не только жить с максимальным комфортом, но и ежедневно экономить деньги! Солнечные батареи автономно освещают парадную, холлы и лестницы. Многокамерные стеклопакеты и современная конструкция фасадов, смонтированных с применением тепловизионного контроля, сводят к минимуму теплопотери. Коммерческая недвижимость на первом этаже комплекса будет передана в общедолевую собственность жильцов. Дополнительный доход от сдачи этих помещений в аренду управляющая компания направит на оплату общедомовых нужд. Добавьте к этому бесплатное пользование паркингом только для жильцов, и вам станет очевидно, что квартира в «Доме на Ленина» зарабатывает для вас каждый день!«Дом на Ленина» находится в районе ул. Ленина, Крупской и бульвара Ибрагимова. Это любимый уфимцами район, примыкающий к историческому и деловому центру нашего города, но не страдающий от пробок и выхлопных газов. На улицах тут много зелени, а район удобен и доступен для личного и общественного транспорта. Здесь много школ, детских садов, поликлиник, кафе, магазинов и учреждений. В шаговой доступности остановки общественного транспорта, два детских сада, три школы, Центральный рынок и парк Якутова. Напротив – храм Симеона Верхотурского и сквер для прогулок.

Местоположение

Город: Уфа
Адрес: ул. Ленина, д.ЖК Дом на Ленина

Объявление в архиве