Продажа 1-комнатная квартира, Уфа, ул. Уфимское шоссе, д.ЖК Квартал Республика

Цена:
1 585 000 Р
Тип объявления: Продажа

Информация о недвижимости

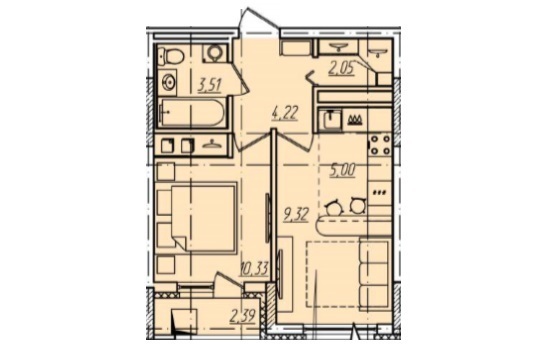
Площадь жилая: 10.33 м²
Площадь кухни: 14.32 м²
Количество комнат: 1
Этаж : 8
Тип дома: Монолит/кирпич
Дополнительная информация: Продается 1-комнатная квартира площадью 35.62 кв.м. в ЖК "Квартал Республика". Жилая площадь - 10.33; кухня - 14.32. Санузел совместный, лоджия застеклена. Есть вариант этажей. Квартиры сдаются с улучшенной черновой отделкой.Срок сдачи 3 квартал 2019 года. Получено разрешение на строительство.Квартал «Республика» - это самый настоящий микрорайон, который состоит из 8-ми домов: 3-х 20 - 23-этажных, 4-х 33-этажных и одного четырнадцатиэтажного дома. Квартал «Республика» являет собой удивительное единение зеленых островков и стремительных линий жилых зданий. Нетронутый уголок природного парка гармонично сочетается здесь со свежими архитектурными решениями,передовыми технологиями и новейшими материалами. Комплекс расположен внутри зеленого квартала, находящегося на пересечении магистральных потоков: Уфимского шоссе, Чудской (Сипайловской), Н.Ватутина и Р.Нуриева. Добраться до дома из любой точки города быстро и легко. А чтобы жители и гости комплекса чувствовали себя в безопасности, на всех пересечениях примыкающих улиц будут установлены дополнительные светофоры.В «Республике» все продумано и для юных жителей. Для самых маленьких - детский сад на 190 мест, для детей постарше – 4 учреждения временного пребывания. В микрорайоне уже существует школа, которая переживет серьезную реконструкцию. Так школьники получат современное благоустроенное здание на 1100 мест. Территория школы также будет увеличена и станет частью общего зеленого массива и будет включена в общую концепцию озеленения микрорайона. Во дворах домов предусмотрены детские площадки, оборудованные горками, лесенками, песочницами, качелями с безопасным покрытием, поэтому мамы могут быть спокойны: малыши самых разных возрастов найдут себе здесь занятие по душе.Каждый дом квартала «Республика» оснащен собственными крышными котельными, которые станут гарантом бесперебойной подачи горячей воды в квартиры. Система позволит:- экономить на стоимости коммунальных услуг.- начинать и прекращать отопительный сезон по желанию жильцов не дожидаясь общегородских подключений.

Местоположение

Город: Уфа
Адрес: ул. Уфимское шоссе, д.ЖК Квартал Республика

Объявление в архиве