| Цена: |
4 282 000 Р
|
| Тип объявления: | Продажа |
Информация о недвижимости |
|
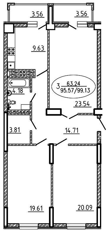
| Площадь жилая: | 63.24 м² |
| Площадь кухни: | 9.63 м² |
| Количество комнат: | 3 |
| Этаж : | 9 |
| Тип дома: | Монолит/кирпич |
| Дополнительная информация: | Продается 3-комнатная квартира по ул.Первомайская 71/3 секция В.Общая площадь 99,13 кв.м., жилая 63,24 кв.м., кухня 9,63 кв.м.Хорошая планировка. Застекленные 2 балкона из кухни и гостиной. Санузел совмещенный. Есть гардеробная.Отделка квартиры получистовая..Оформление: договора с регистрацией в Регпалате. Возможна ипотека с господдержкой.Рядом ул. Первомайская, Интернациональная, Кольцевая, А.Невского.Развитая инфраструктура. Рядом школы, дет.сады, поликлиники, парк. |
Местоположение |
|
| Город: | Уфа |
| Адрес: | ул. Первомайская, д.71/3 |
Объявление в архиве |